Spazio ufficio in affitto - Brenntweg 1, 5400 Baden
Perché amerai questa proprietà
Posizione centrale a Baden
Cantina a volta per stoccaggio
Affitto flessibile fino al 2027
Organizza una visita
Prenota una visita con Eduart oggi!
Interessato a un pop-up? questo è il tuo spazio commerciale per un uso temporaneo!
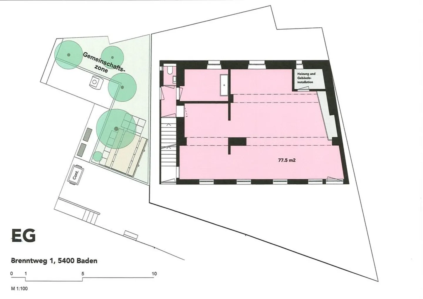
Nel centro di Baden, in un bel palazzo d'epoca, affittiamo uno spazio commerciale con cantina a volta per un uso temporaneo fino al 28 febbraio 2027.
La superficie del negozio misura circa 77,50 m2. Una cantina a volta di 23,80 m2 offre spazio di stoccaggio aggiuntivo. L'area è dotata di pareti divisorie e sarà consegnata nello stato attuale di base. La proprietà sarà demolita dopo l'uso temporaneo. Un bagno è disponibile nell'area in affitto.
Buono a sapersi:
- La proprietà non dispone di ascensor...
Ripartizione dei costi
- Affitto netto
- CHF 1’700
- Costi aggiuntivi
- CHF 150
- Totale delle locazioni
- CHF 1’700
Dettagli immobile
- Disponibile dal
- Su accordo



