Negozio in affitto - Bollstrasse 1, 3076 Worb
Perché amerai questa proprietà
Zona ad alto passaggio
Design interno flessibile
Magazzini inclusi
Organizza una visita
Prenota una visita con Nadja oggi!
Il tuo nuovo locale commerciale in una posizione privilegiata
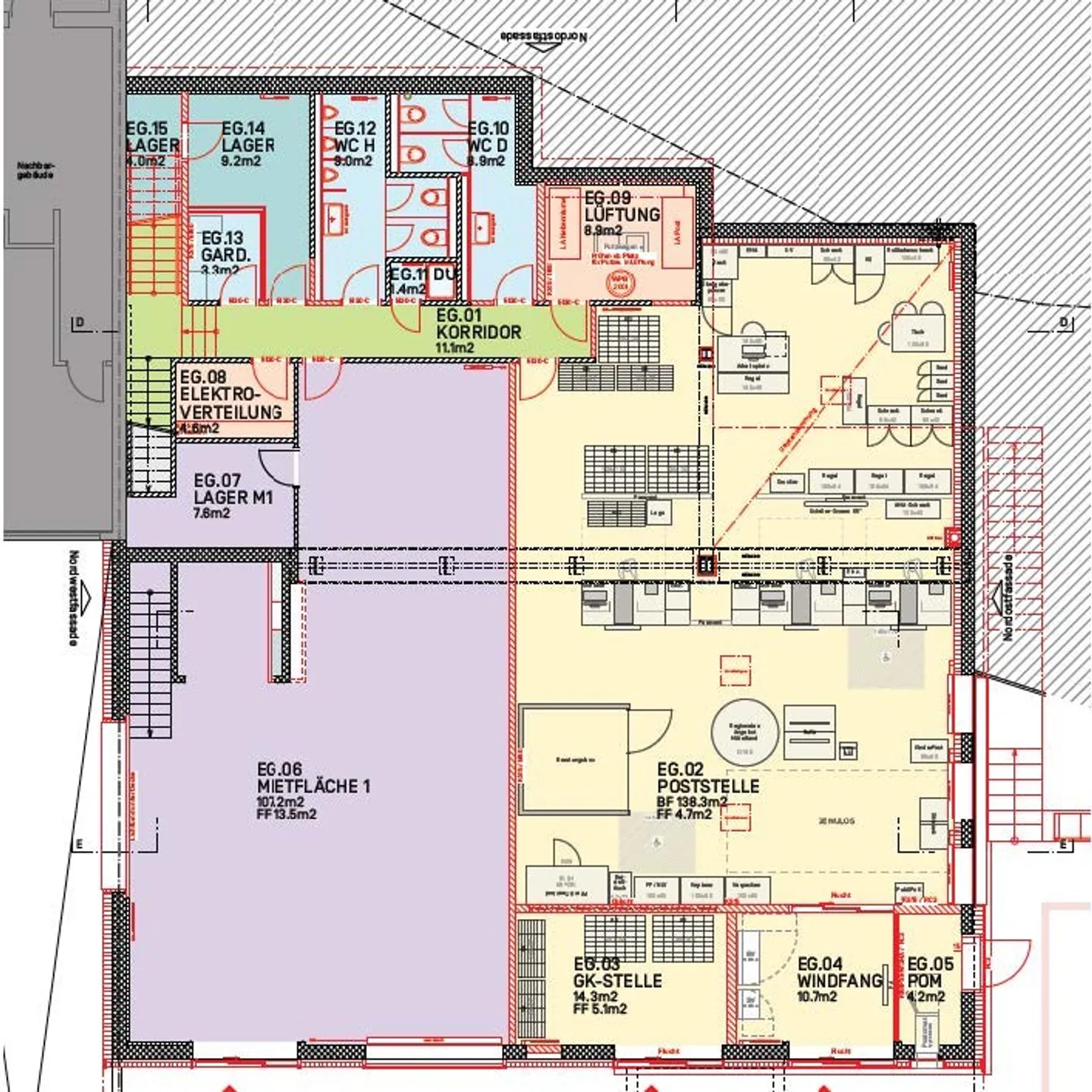
Il locale commerciale di circa 115 m2 al piano terra (vedi pianta della superficie in affitto n. 1, contrassegnata in viola) si trova in una posizione privilegiata a Worb. A pochi minuti a piedi ci sono molte opzioni di shopping, l'autobus, il tram e la stazione ferroviaria sono proprio davanti alla porta.
La proprietà si distingue per le seguenti caratteristiche:
* La proprietà sarà ampiamente ristrutturata a partire dall'estate 2025
* Inizio dell'affitto previsto per marzo 2026
* Alta affluenza...
Ripartizione dei costi
- Affitto netto
- CHF 2’635
- Costi aggiuntivi
- CHF 335
- Totale delle locazioni
- CHF 2’635
Dettagli immobile
- Disponibile dal
- 01.03.2026
- Superficie abitabile
- 115 m²
- Superficie utilizzabile
- 115 m²



