Commerciale in affitto - Bahnhofstrasse 1, 3454 Sumiswald
Perché amerai questa proprietà
Ideale per attività tranquille
Ascensore merci 1600 kg
Ampia area di consegna disponibile
Organizza una visita
Prenota una visita con Moritz oggi!
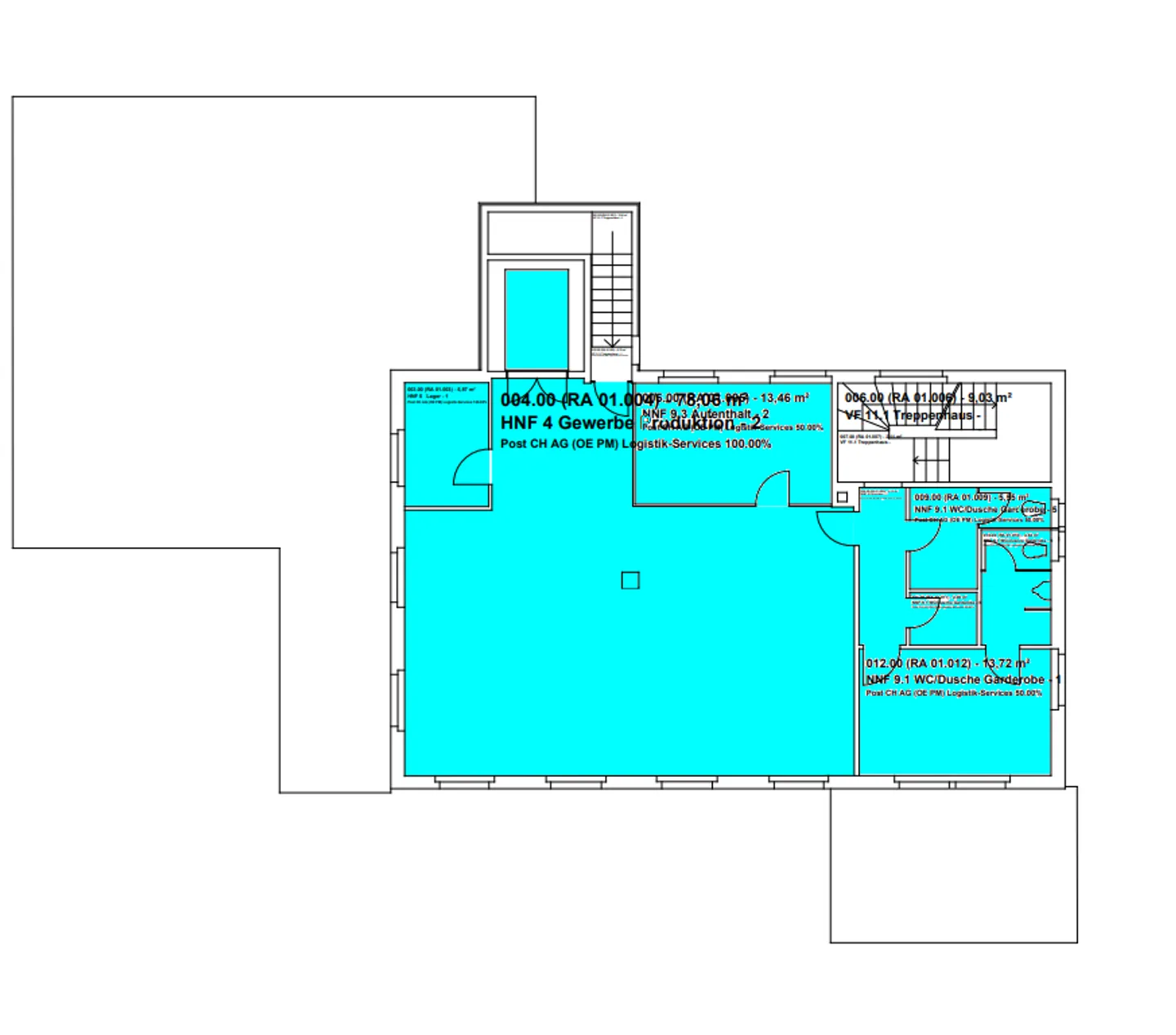
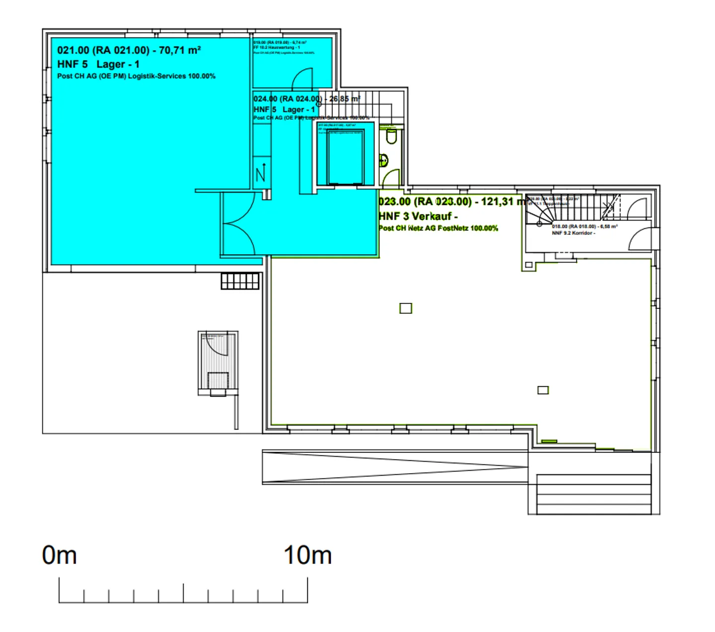
Spazio commerciale spazioso (ex punto di consegna della posta)
In una posizione centrale, l'ampia area di 240 m2 al piano terra e al 1° piano è disponibile per l'affitto su accordo.
* Spazio ideale per attività tranquille, produzione, vendita al dettaglio, studio
* L'area in affitto di un totale di 240 m2 si trova al piano terra con 110 m2 (consegna / attività) e al 1° piano con 130 m2 (magazzino, ufficio, attività, corridoio, WC/doccia/guardaroba)
* Ascensore per merci con una capacità di carico di 1600 chilogrammi disponibile
* Alta sicurezza grazie alle gra...
Dettagli immobile
- Disponibile dal
- Su accordo
- Superficie abitabile
- 240 m²
- Superficie utilizzabile
- 240 m²



