Spazio ufficio in affitto - Alpenstrasse 1, 6004 Luzern
Perché amerai questa proprietà
Uffici con vista lago
Configurazioni flessibili
Posizione centrale a Lucerna
Organizza una visita
Prenota una visita con Bussmann oggi!
Uffici singoli attraenti nel cuore di Lucerna - con vista diretta sul lago
Uffici singoli attraenti nel cuore di Lucerna - posizione centrale con vista diretta sul lago
Ufficio 1 di 16,5 m², affitto CHF 990.00
Descrizione dell'oggetto
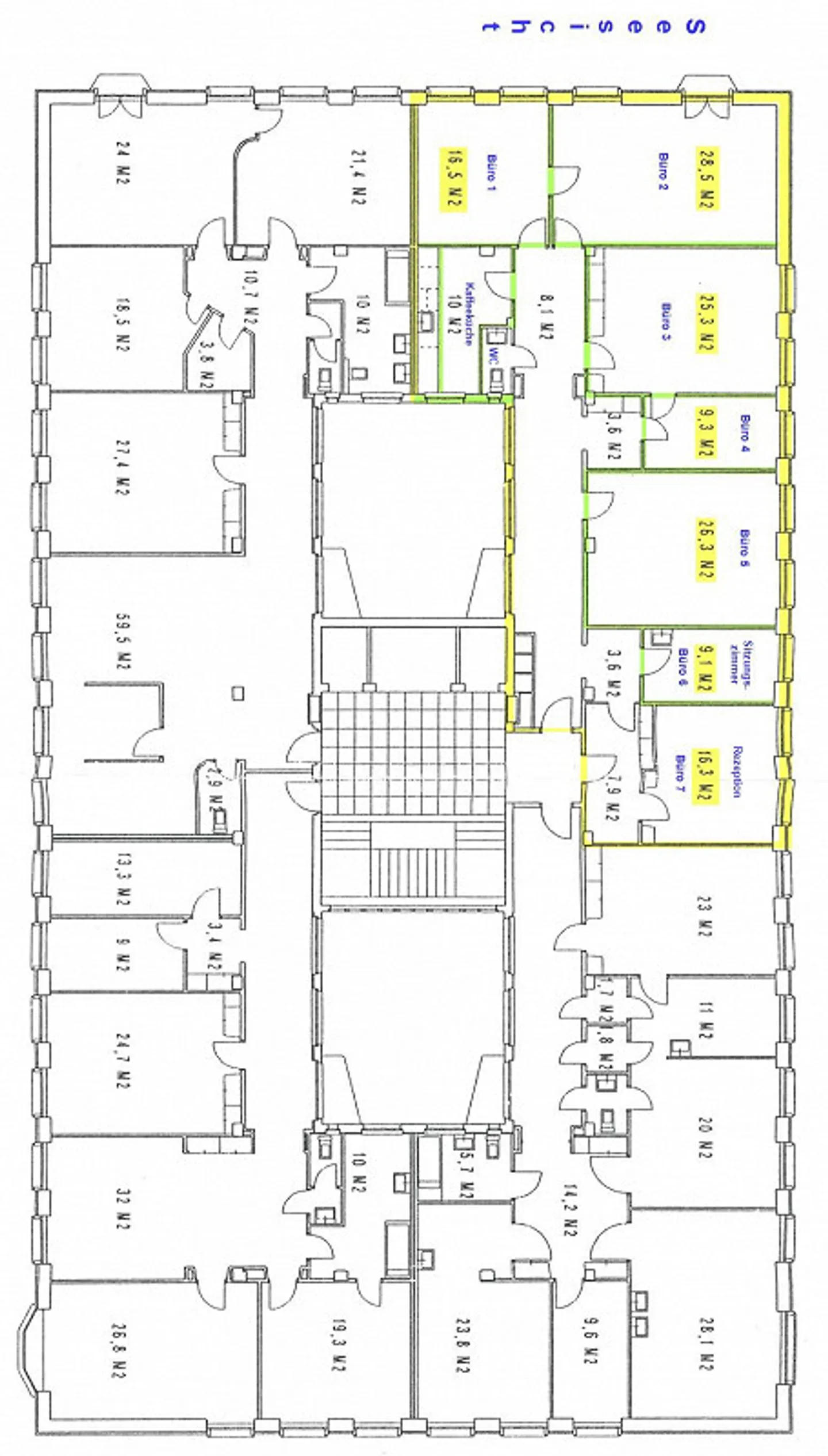
In una posizione privilegiata in Alpenstrasse 1, affittiamo l'Ufficio 1 (16,5 m²) secondo la pianta allegata al 5° piano di un edificio commerciale rappresentativo, nel centro della città di Lucerna e con vista diretta sul Lago di Lucerna. L'area comprende un totale di 7 stanze arredate e chiudibili a chiave (tra 9,3 m² e 28,5 m²), che poss...
Dettagli immobile
- Disponibile dal
- Su accordo



