Casa singola in affitto - 8353 Elgg
Perché amerai questa proprietà
Bel giardino con laghetto
Cucina moderna aperta
Ampio spazio nel seminterrato
Organizza una visita
Prenota una visita con Nicole oggi!
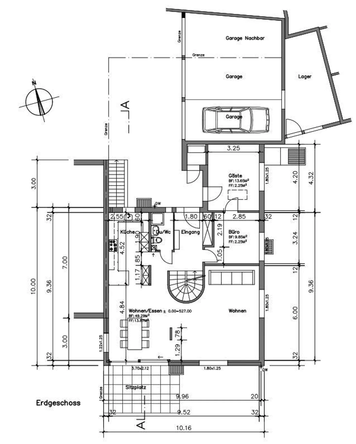
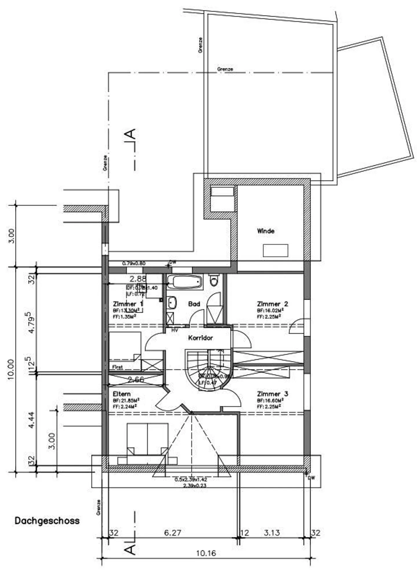
Ampia casa bifamiliare con laghetto e giardino
Questa casa bifamiliare ben tenuta, conforme agli standard di proprietà, offre molto spazio, dotazioni ben pensate e una sensazione di vita a contatto con la natura, ideale per una famiglia che apprezza casa e giardino.
La proprietà si distingue per i seguenti dettagli:
- Ampia area esterna ben curata con laghetto e sorgente propria, area verde, oltre a aiuole piantumate. Sono disponibili attrezzi da giardino e robot tosaerba.
- Cucina moderna aperta con forno, vaporizzatore separato, dispositivo p...
Dettagli immobile
- Disponibile dal
- Su accordo
- Stanze
- 7
- Superficie abitabile
- 190 m²



