Casa a schiera in affitto - 8200 Schaffhausen
Perché amerai questa proprietà
Spazio abitativo moderno e accogliente
Comfort del riscaldamento a pavimento
Posizione ideale per famiglie
Organizza una visita
Prenota una visita con Romy oggi!
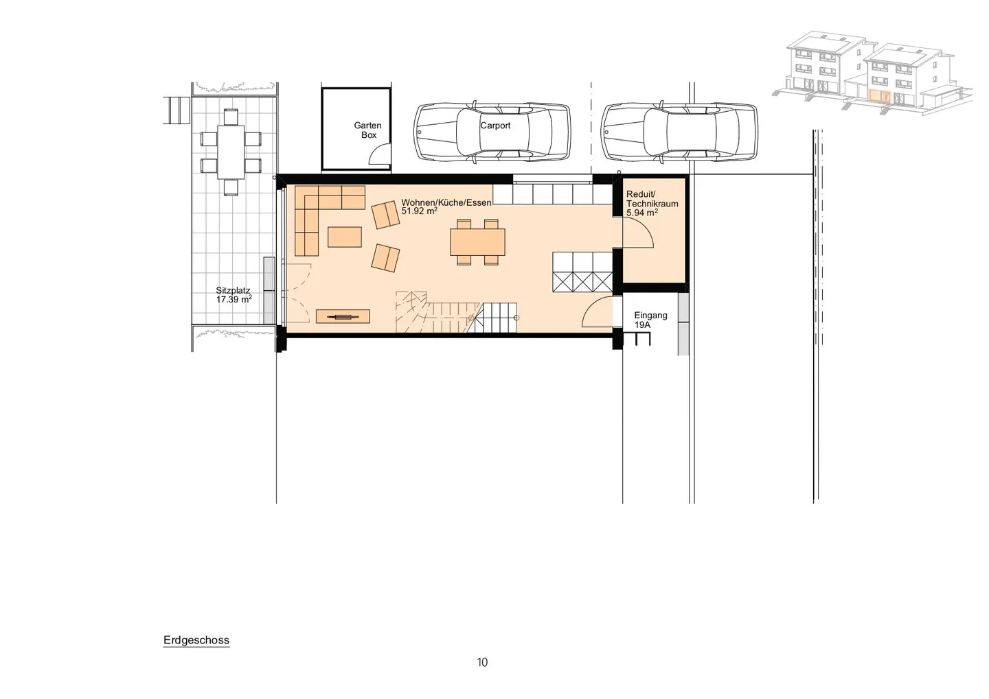
Spaziosa casa a schiera di nuova costruzione con 5,5 stanze a sciaffusa
In un affascinante villaggio nel cantone di Sciaffusa, questa casa a schiera con 5,5 stanze offre la combinazione perfetta di comodità e modernità. Il soggiorno invita a sostare, mentre la cucina moderna è un luogo di ispirazione. Con un totale di 4 camere da letto e 2 bagni, questa casa offre spazio sufficiente per tutta la famiglia. La proprietà dispone di una cantina e di un pratico carport.
La casa a schiera sarà costruita nel 2026. Lo standard di costruzione moderno è sottolineato dall'ambie...
Ripartizione dei costi
- Affitto netto
- CHF 2’700
- Costi aggiuntivi
- CHF 250
- Totale delle locazioni
- CHF 2’950
Dettagli immobile
- Disponibile dal
- Su accordo
- Stanze
- 5.5
- Anno di costruzione
- 2026
- Superficie abitabile
- 150 m²
- Superficie terreno
- 170 m²



