Casa 4.5 stanze
Perché amerai questa proprietà
Vicino ai mezzi pubblici
Ampia terrazza per relax
Cucina attrezzata con zona pranzo
Organizza una visita
Prenota una visita con Muriel oggi!
Casa a schiera nel villaggio
Incantevole piccola casa, vicino alle organizzazioni internazionali, ai mezzi pubblici, al lago e a tutti i servizi.
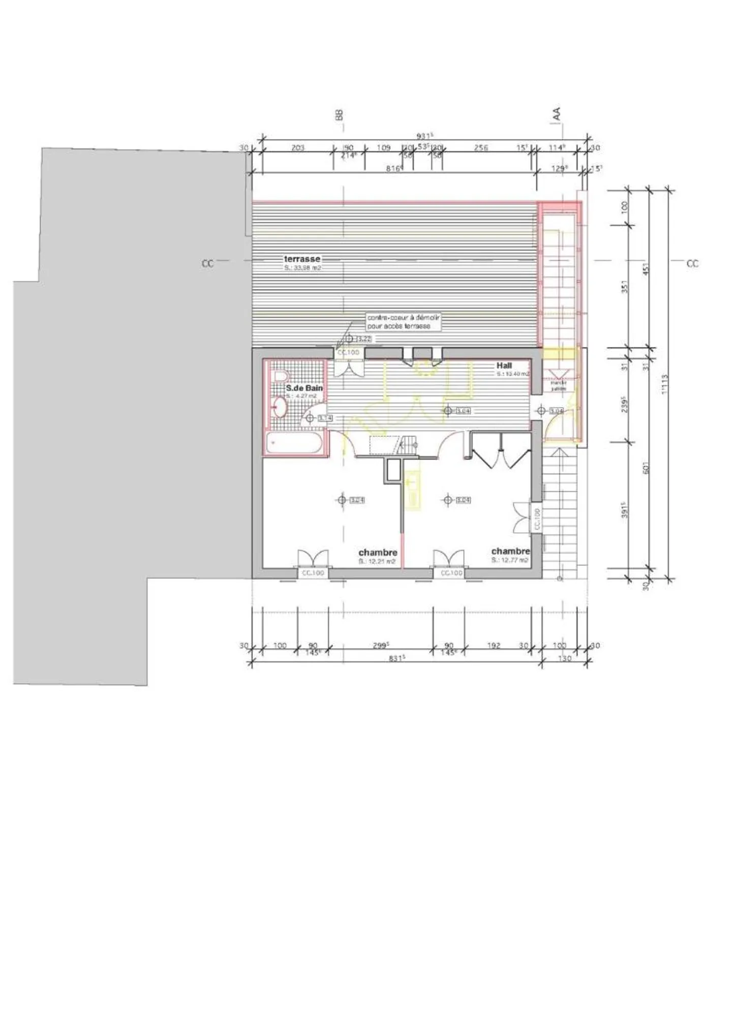
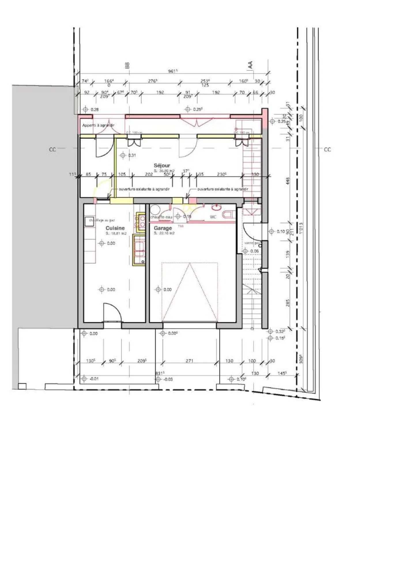
Situata a Versoix, questa casa è distribuita come segue:
Piano terra: Cucina attrezzata (piano cottura, forno, cappa, lavastoviglie) con zona pranzo, soggiorno, accesso al giardino, ripostiglio.
1° piano: Due camere da letto, bagno con wc, grande terrazza.
Sottotetto: Stanza multifunzionale.
Garage e lavanderia con lavatrice.
Spese individuali in aggiu...
Dettagli immobile
- Disponibile dal
- Su accordo
- Stanze
- 4.5
- Bagni
- 1
- Superficie abitabile
- 140 m²


