Casa singola in affitto - 6926 Montagnola
Perché amerai questa proprietà
Giardino privato spazioso
Terrazze panoramiche
Soggiorno luminoso con accesso
Organizza una visita
Prenota una visita con Sedina oggi!
Casa con giardino privato a montagnola
Se sognate di vivere in una casa spaziosa, immersa nella tranquillità e nella natura, questa casa a Montagnola è l'opportunità perfetta.
Posizione: Situata nella prestigiosa Collina d'Oro, in una zona residenziale riservata e ben collegata, questa casa offre un rifugio ideale per famiglie e professionisti.
Caratteristiche principali
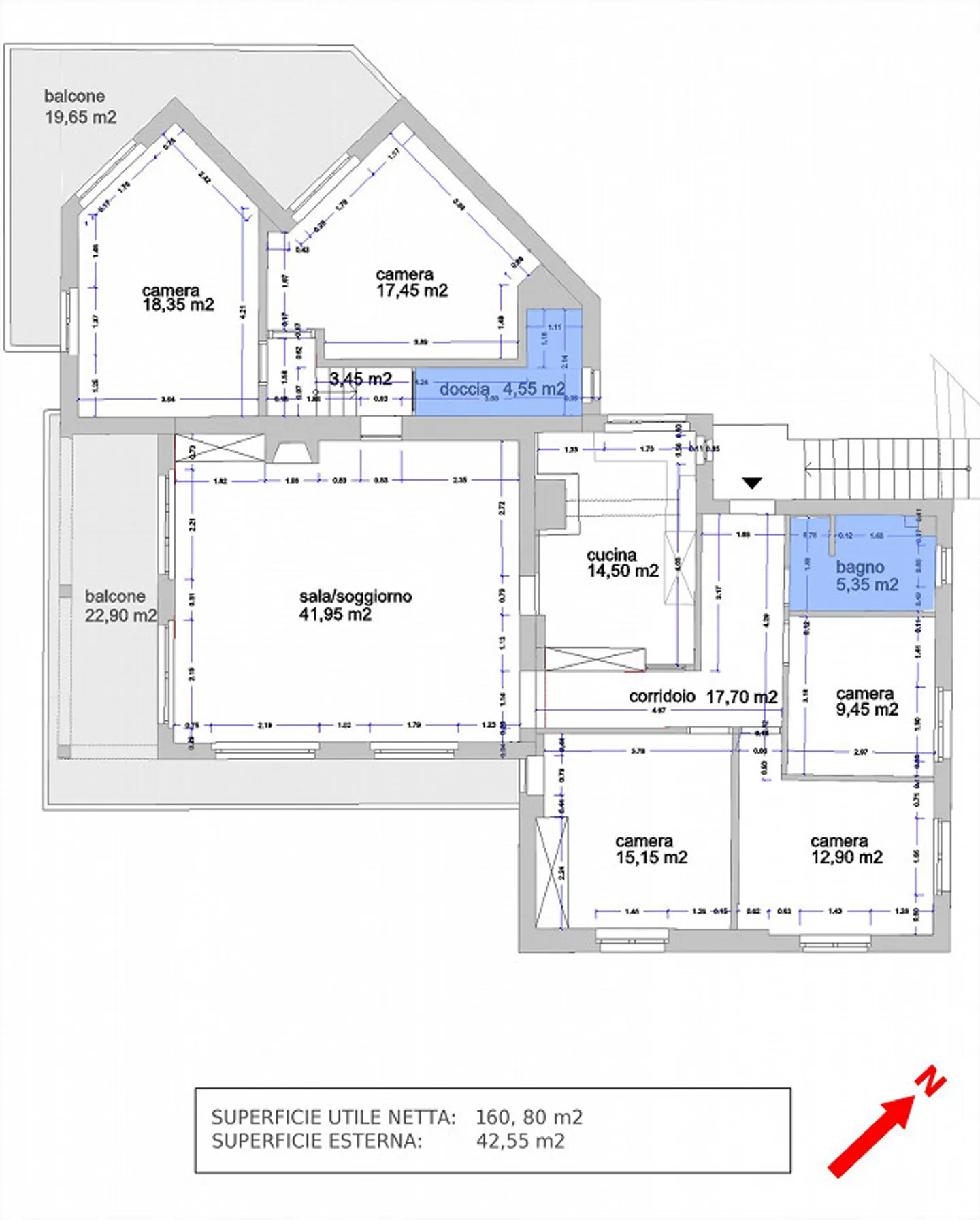
* Superficie abitabile netta: 160,80 m²
* Superficie esterna (balconi): 42,55 m²
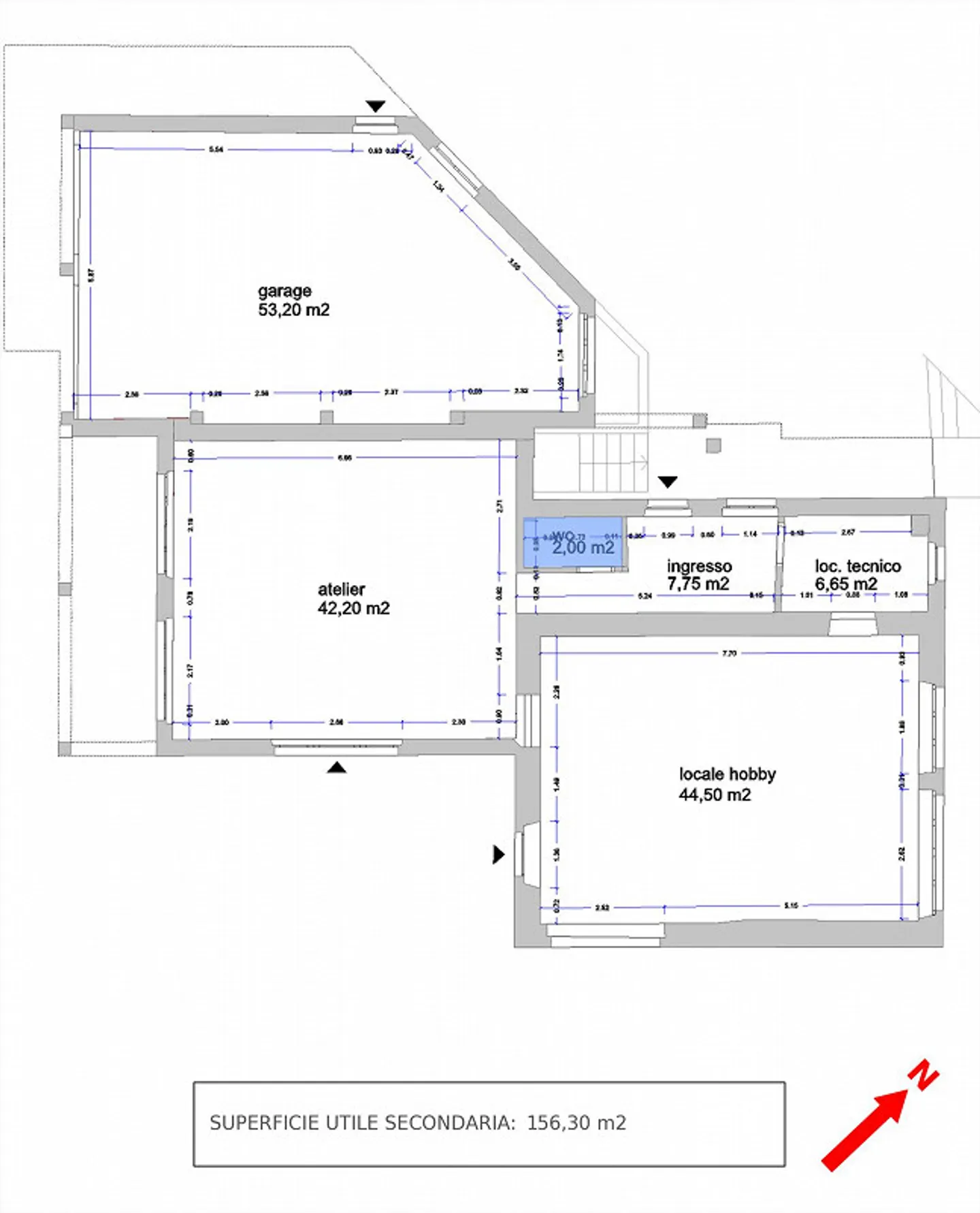
* Superficie accessoria (garage, locali tecnici): 156,30 m²
* Superficie cantina/interrato...
Dettagli immobile
- Disponibile dal
- 01.05.2025
- Stanze
- 4
- Superficie abitabile
- 161 m²



