Casa singola in affitto - Staatsstrasse 58, 8888 Heiligkreuz (Mels)
Perché amerai questa proprietà
Vista mozzafiato sulle montagne
Spazio giardino privato
Energia solare ecologica
Organizza una visita
Prenota una visita con Weibel oggi!
Casa bifamiliare di 5,5 stanze - Il tuo sogno abitativo per tutta la famiglia!
La tua casa dei sogni nel soleggiato Heiligkreuz!
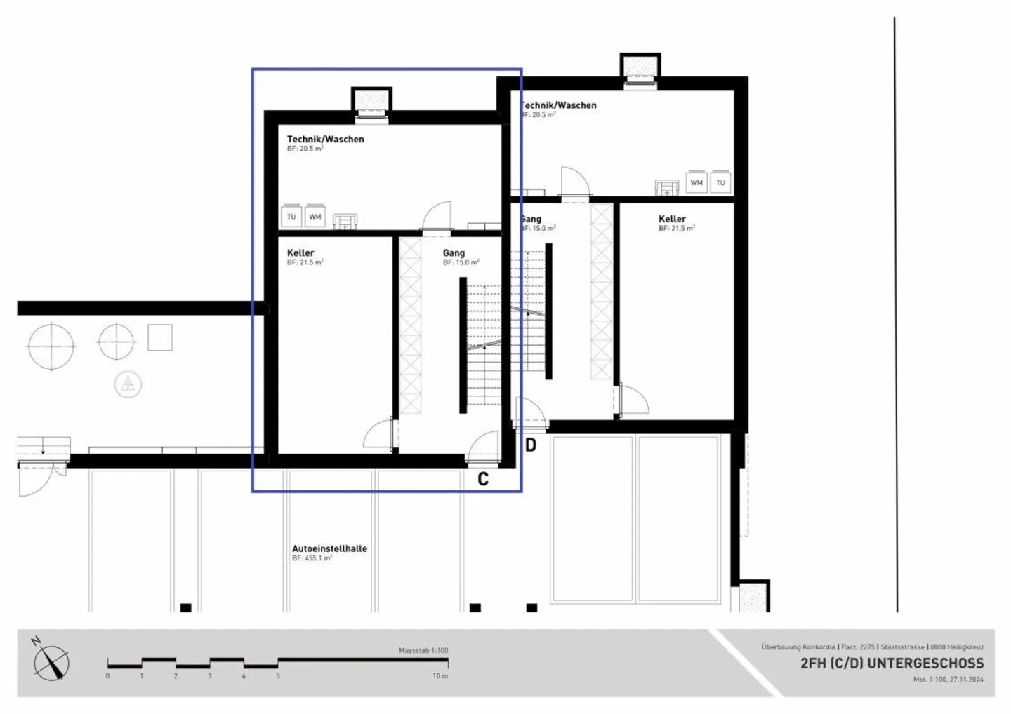
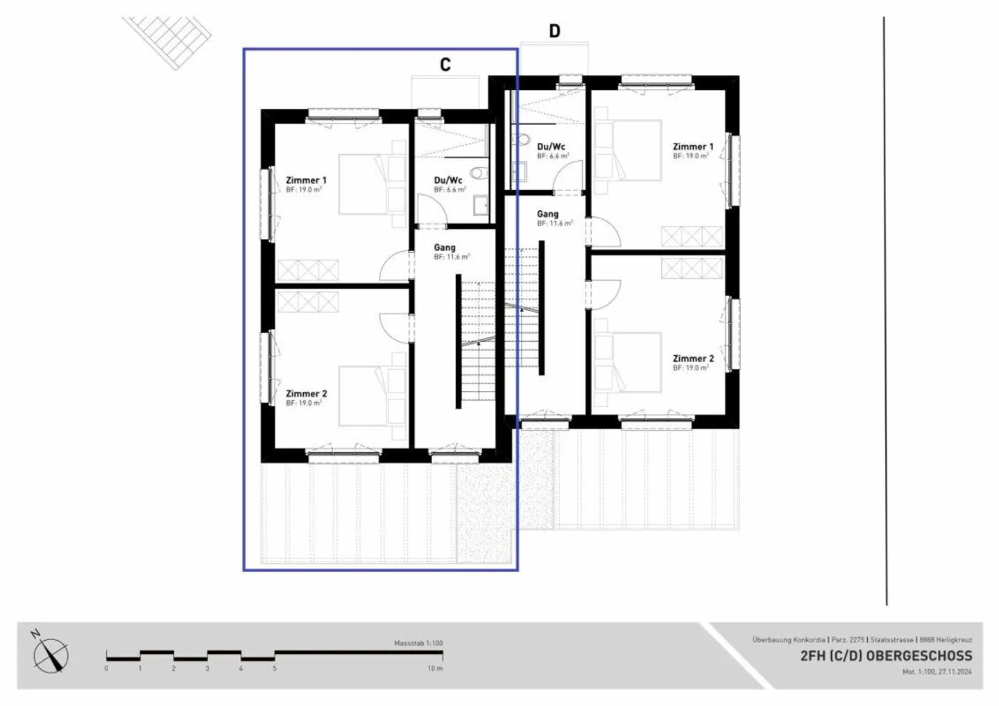
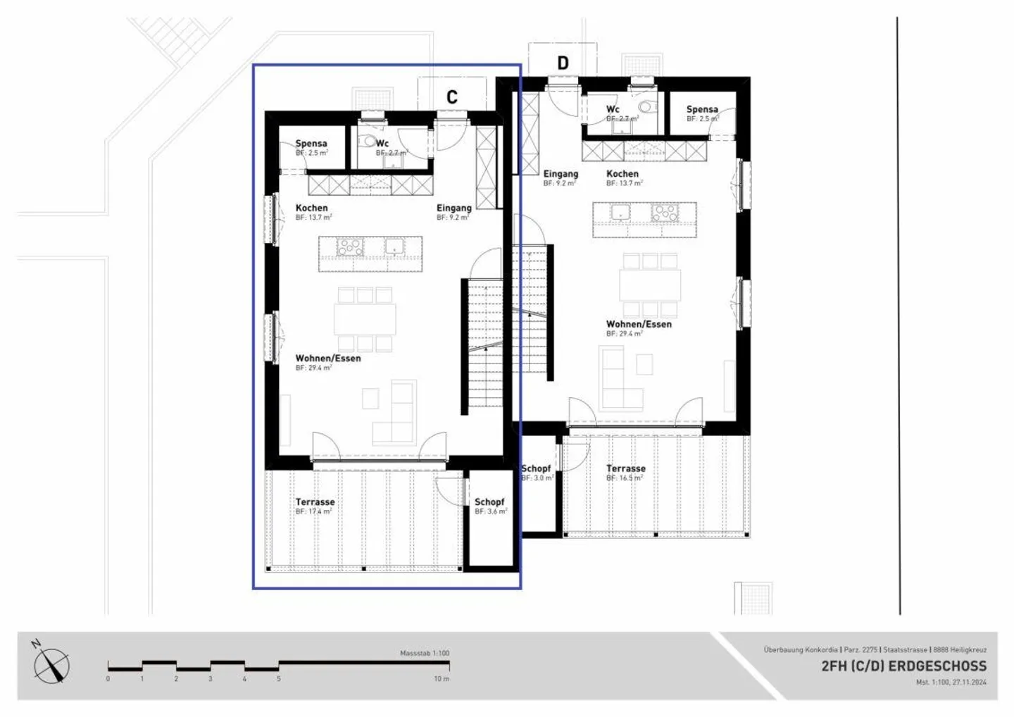
Un moderno edificio plurifamiliare con un totale di 3 appartamenti e 4 case bifamiliari sta sorgendo sulla strada statale a Heiligkreuz. L'intero complesso comprende un garage sotterraneo comune con 14 posti auto, e verranno creati anche posti auto esterni e per visitatori. Tutti i posti auto nel garage sotterraneo saranno preparati con tubi vuoti per le stazioni di ricarica per auto elettriche. Un impianto fotovoltaico autonomo sarà installato s...
Ripartizione dei costi
- Affitto netto
- CHF 3’000
- Costi aggiuntivi
- CHF 300
- Totale delle locazioni
- CHF 3’000
Dettagli immobile
- Disponibile dal
- Su accordo
- Stanze
- 5.5
- Superficie abitabile
- 184 m²
- Superficie terreno
- 310 m²



