1 / 5

Casa singola in affitto - Melchnaustrasse 4f, 4934 Madiswil

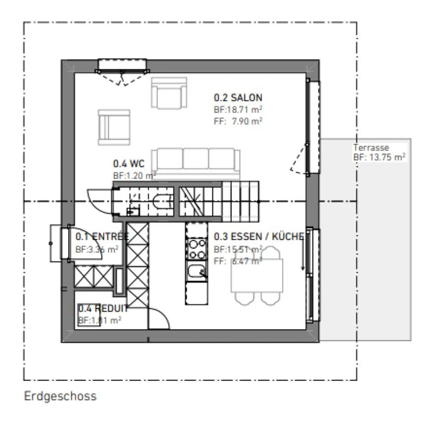
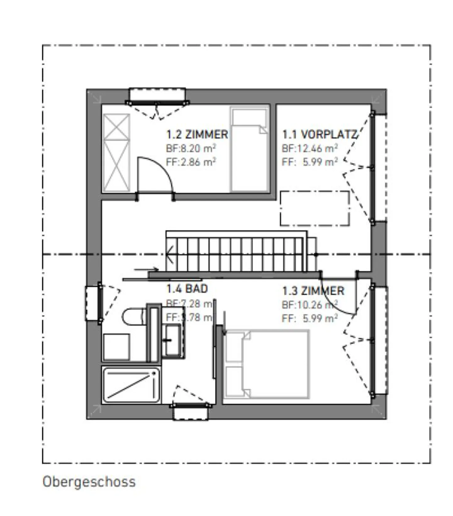
3.5 rooms • 79 m²
CHF 1’990.-
CHF 302 m² / year

Perché amerai questa proprietà

Spazio abitativo luminoso

Cucina moderna attrezzata

Terrazza di 14 m² per rilassarsi

Organizza una visita

Prenota una visita oggi!

Revimag Immobilien AG
Questa descrizione è stata tradotta automaticamente da Tedesco.

Tiny houses al mühlebach - minimalista. sostenibile. accogliente.

Queste case tiny di alta qualità impressionano per una combinazione riuscita di design moderno, disposizione degli spazi ben pensata e costruzione sostenibile. In uno spazio ridotto, godete del massimo comfort abitativo - ideale per single, coppie o piccole famiglie - che apprezzano stile, funzionalità e vicinanza alla natura.

- Spazio abitativo luminoso e aperto con grandi finestre

- Cucina moderna completamente attrezzata

- Soluzioni di stoccaggio intelligenti per un utilizzo ottimale dello spazi...

Dettagli immobile

Disponibile dal
Su accordo
Stanze
3.5
Anno di costruzione
2025
Superficie abitabile
79

Agenzia

Revimag Immobilien AG
Indirizzo:Dagmersellen, Baselstrasse, 6252
Ref: 3f182c6f-8a26-11f0-9d93-069ae14c7a06

Località

Melchnaustrasse 4f, 4934 Madiswil

Fonti