Casa singola in affitto - Störenbergstrasse 28, 8265 Mammern
Perché amerai questa proprietà
Vista lago non ostacolata
Elettrodomestici moderni
Accesso al lift e garage
Organizza una visita
Prenota una visita oggi!
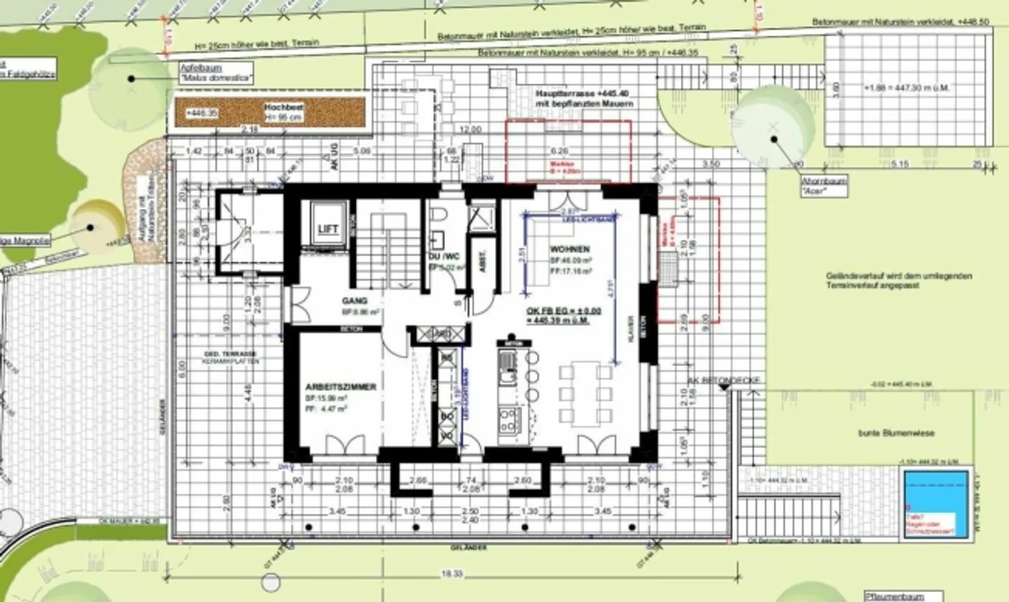
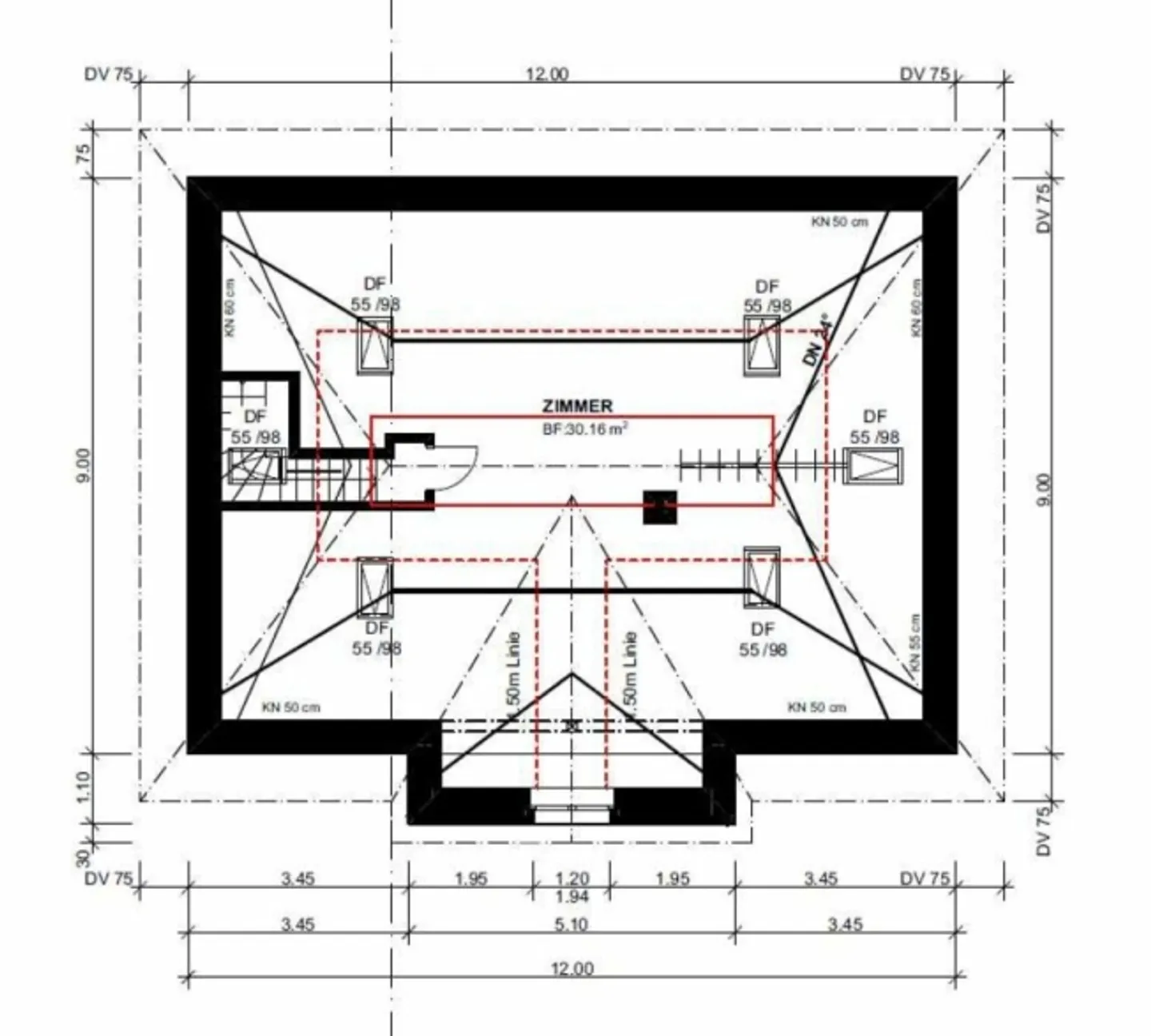
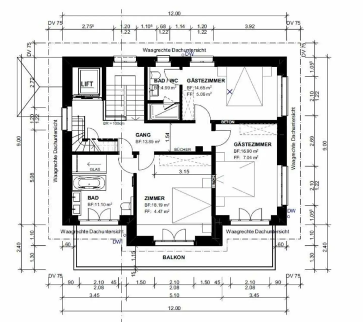
In affitto a Mammern, adiacente alla zona agricola, casa unifamiliare indipendente di 6½ locali con ascensore; in una posizione collinare non edificabile e con vista sul lago!
In affitto in Störenbergstrasse 28 a 8265 Mammern.
Nuova casa unifamiliare indipendente di 6½ locali in una posizione collinare non edificabile, soleggiata e tranquilla, adiacente alla zona agricola e con vista sul lago !
Tipo di costruzione, costruzione solida:
I muri esterni sono spessi 53 cm con mattoni a doppia parete e 24 cm di lana minerale in mezzo. L'intonaco dei mattoni è in intonaco minerale all'interno e all'esterno ! Questo crea un clima abitativo sano e molto piacevole sia in estate ch...
Dettagli immobile
- Disponibile dal
- Su accordo
- Stanze
- 6.5
- Anno di costruzione
- 2026
- Superficie abitabile
- 200 m²



