Casa a gradini in affitto - Hintergasse 15a, 8353 Elgg
Perché amerai questa proprietà
Ampio soggiorno con stufa
Grande terrazza per relax
Spaziosa sala hobby in cantina
Organizza una visita
Prenota una visita con Brühwiler oggi!
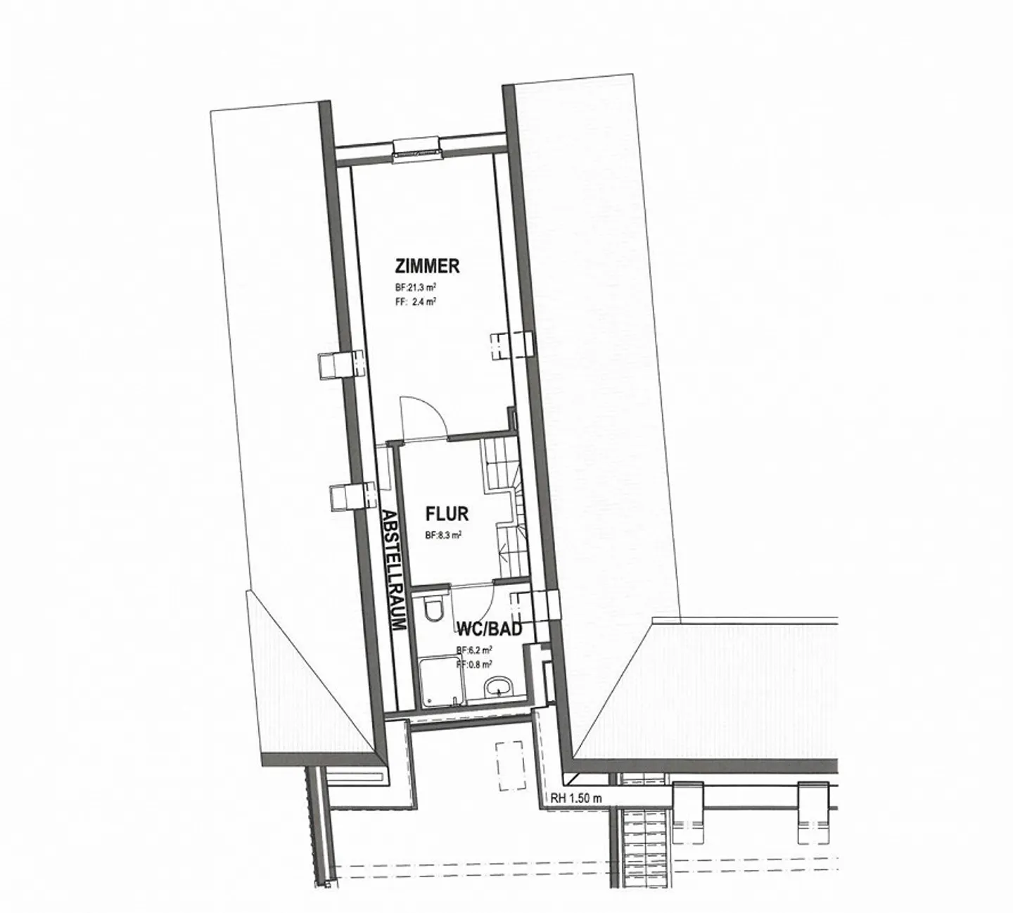
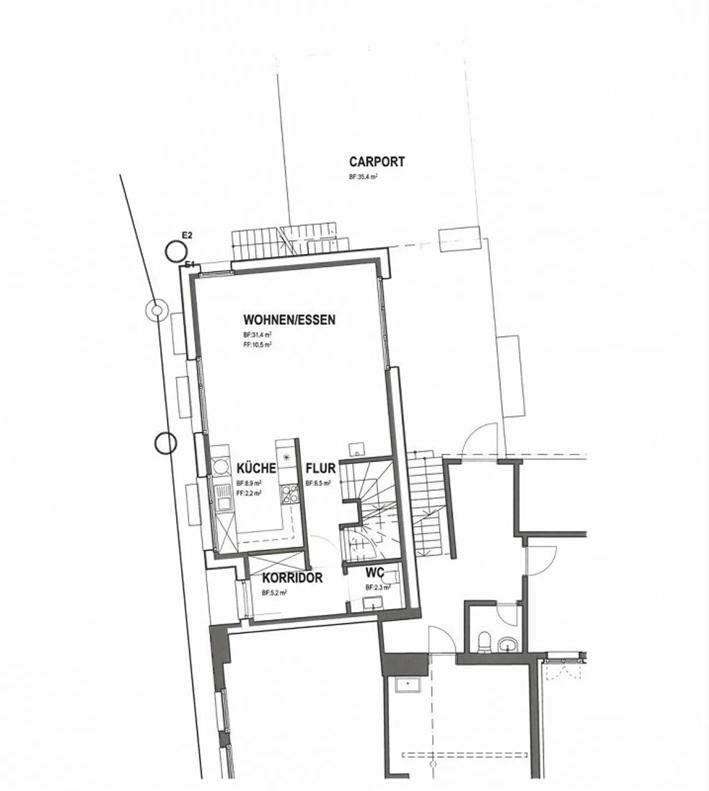
Moderna casa unifamiliare di 5,5 stanze con grande terrazza e molte stanze accessorie
8353 ELGG
Elgg si trova nella parte alta della valle di Eulach, a circa dodici chilometri a est di Winterthur, proprio al confine con il cantone di Thurgovia. Elgg è una delle sei storiche cittadine di campagna di Zurigo, ma è in realtà un villaggio pieno di fascino, personalità e alta qualità della vita.
Un'eccellente infrastruttura con numerosi negozi, due banche, un ufficio postale e aziende efficienti e cooperative di vari settori caratterizza il villaggio. Grazie alla connessione ferroviaria ...
Dettagli immobile
- Disponibile dal
- Su accordo
- Stanze
- 5.5
- Anno di costruzione
- 2011
- Anno di ristrutturazione
- 2024
- Superficie abitabile
- 167 m²


