Villa in affitto - Birmenstorferstrasse 1, 5442 Fislisbach
Perché amerai questa proprietà
Layout aperto e luminoso
Parquet elegante
Spazio terrazza privata
Organizza una visita
Prenota una visita oggi!
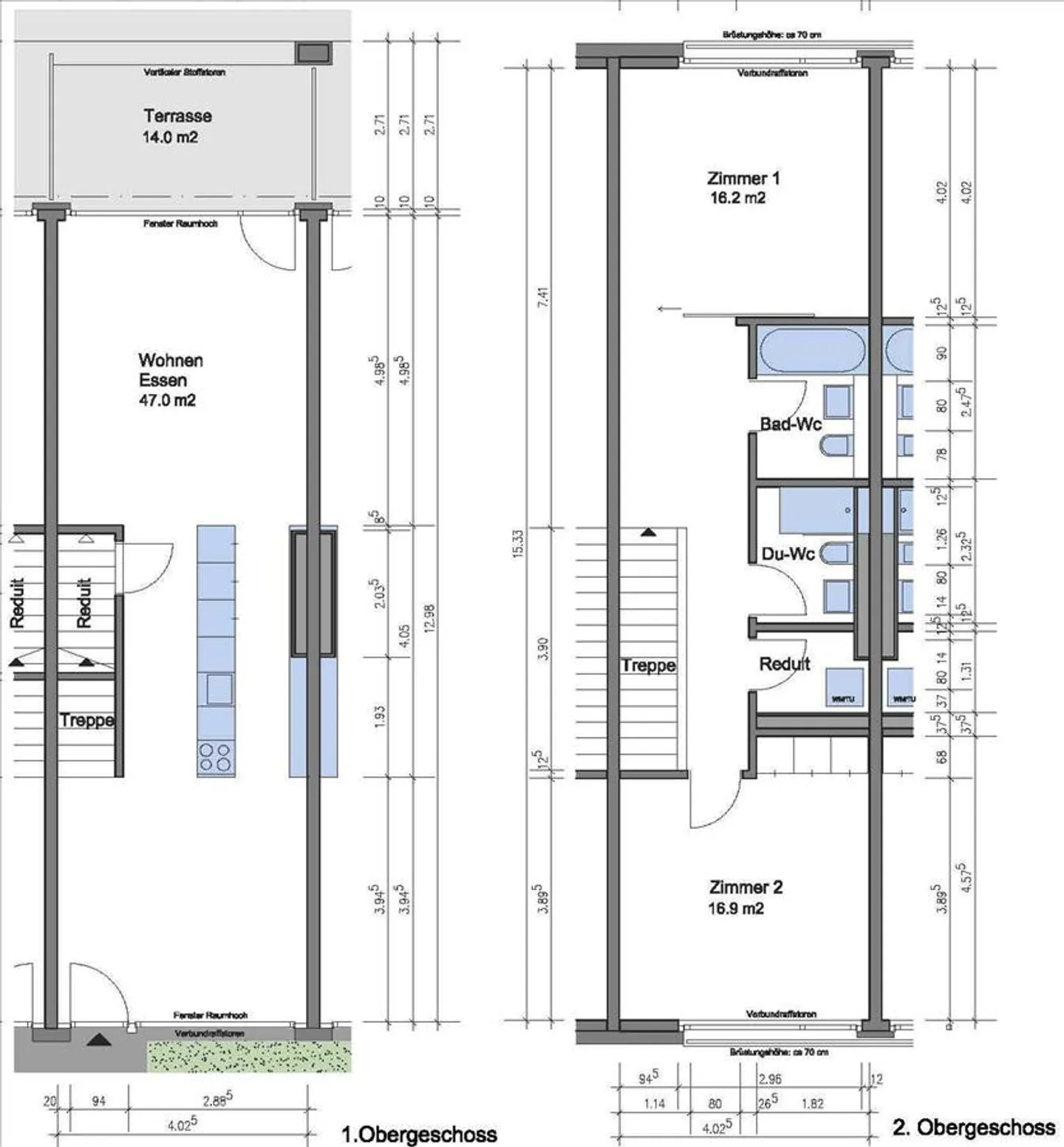
Vivere su due livelli!
Un appartamento duplex moderno su due piani ti aspetta!
- Piano aperto inondato di luce
- Pavimento in parquet in tutti gli spazi abitativi
- Cucina moderna con lavastoviglie
- Ingresso separato
- Doccia/WC
- Bagno/WC
- Ripostiglio
- Terrazza
- Cantina
- Posti auto
Servizi di acquisto nell'edificio e buona connessione ai mezzi pubblici.
Abbiamo suscitato il tuo interesse? Non vediamo l'ora di ricevere tue notizie!
Ripartizione dei costi
- Affitto netto
- CHF 2’230
- Costi aggiuntivi
- CHF 290
- Totale delle locazioni
- CHF 2’230
Dettagli immobile
- Disponibile dal
- Su accordo
- Stanze
- 3.5
- Anno di costruzione
- 2008
- Superficie abitabile
- 101 m²



