Stanza singola in affitto - Baarerstrasse 75, 6300 Zug
Perché amerai questa proprietà
Posizione centrale a Zug
Magazzino asciutto e pulito
Accesso facile tramite scale
Organizza una visita
Prenota una visita oggi!
Grande spazio di stoccaggio nel centro città
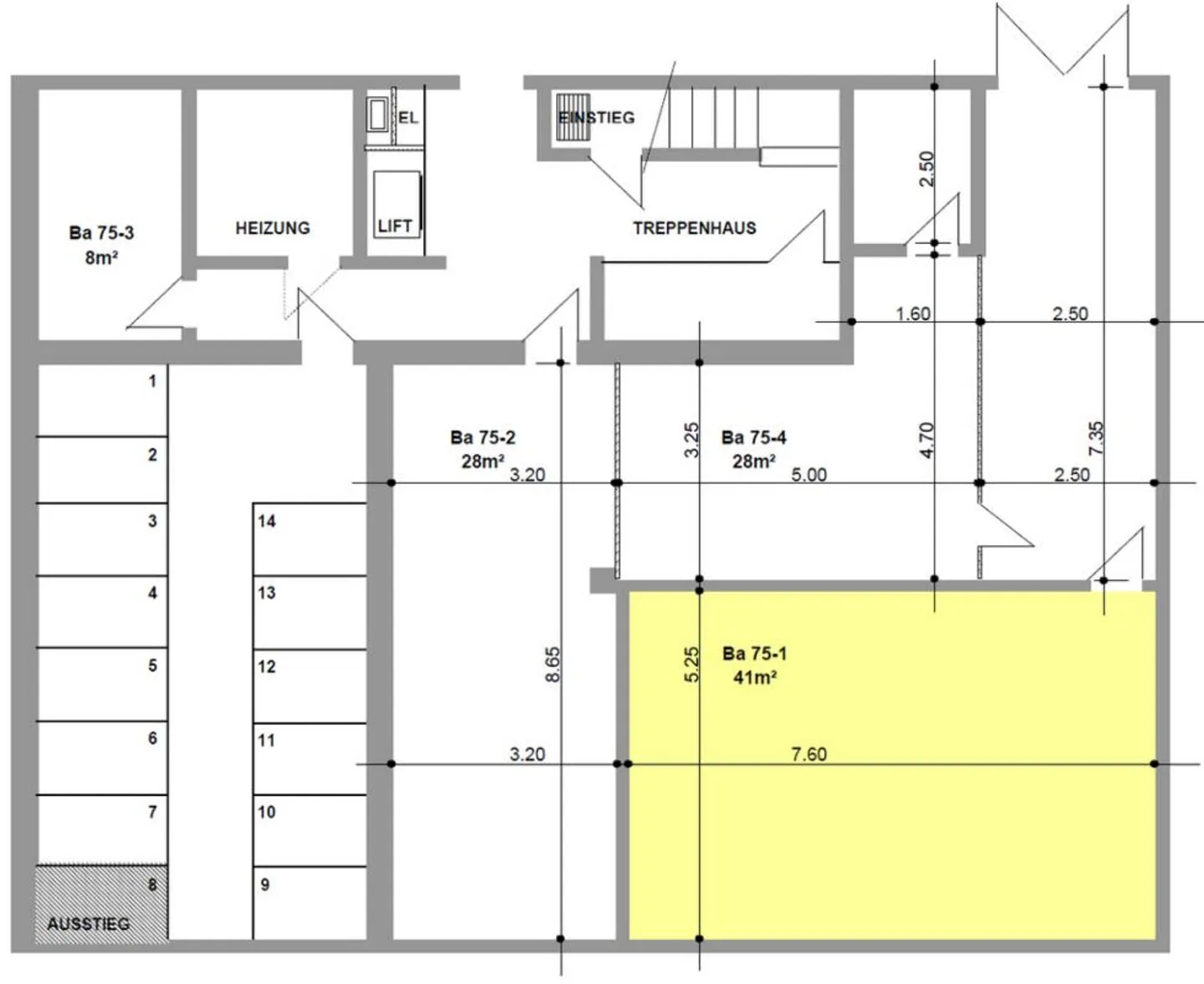
In Baarerstrasse 75 a 6300 Zug, affittiamo un pratico spazio di stoccaggio nel 1° seminterrato a partire dal 1° luglio 2026.
La stanza copre circa 41 m2 ed è ideale per la conservazione sicura di mobili, documenti, attrezzature sportive o oggetti personali.
La proprietà si trova in una posizione centrale a Zug ed è facilmente accessibile. Lo spazio di stoccaggio è asciutto, pulito e comodamente accessibile tramite le scale. Grazie alla sua posizione nel seminterrato, offre un'opzione discreta e si...
Ripartizione dei costi
- Affitto netto
- CHF 403
- Costi aggiuntivi
- CHF 30
- Totale delle locazioni
- CHF 403
Dettagli immobile
- Disponibile dal
- Su accordo
- Superficie abitabile
- 41 m²
- Superficie utilizzabile
- 41 m²
- Piano
- -1°



