Appartamento in affitto - Zipfelweg, 8134 Adliswil
Perché amerai questa proprietà
Ristrutturato 2011
Vicino ai trasporti pubblici
Ampio balcone
Organizza una visita
Prenota una visita oggi!
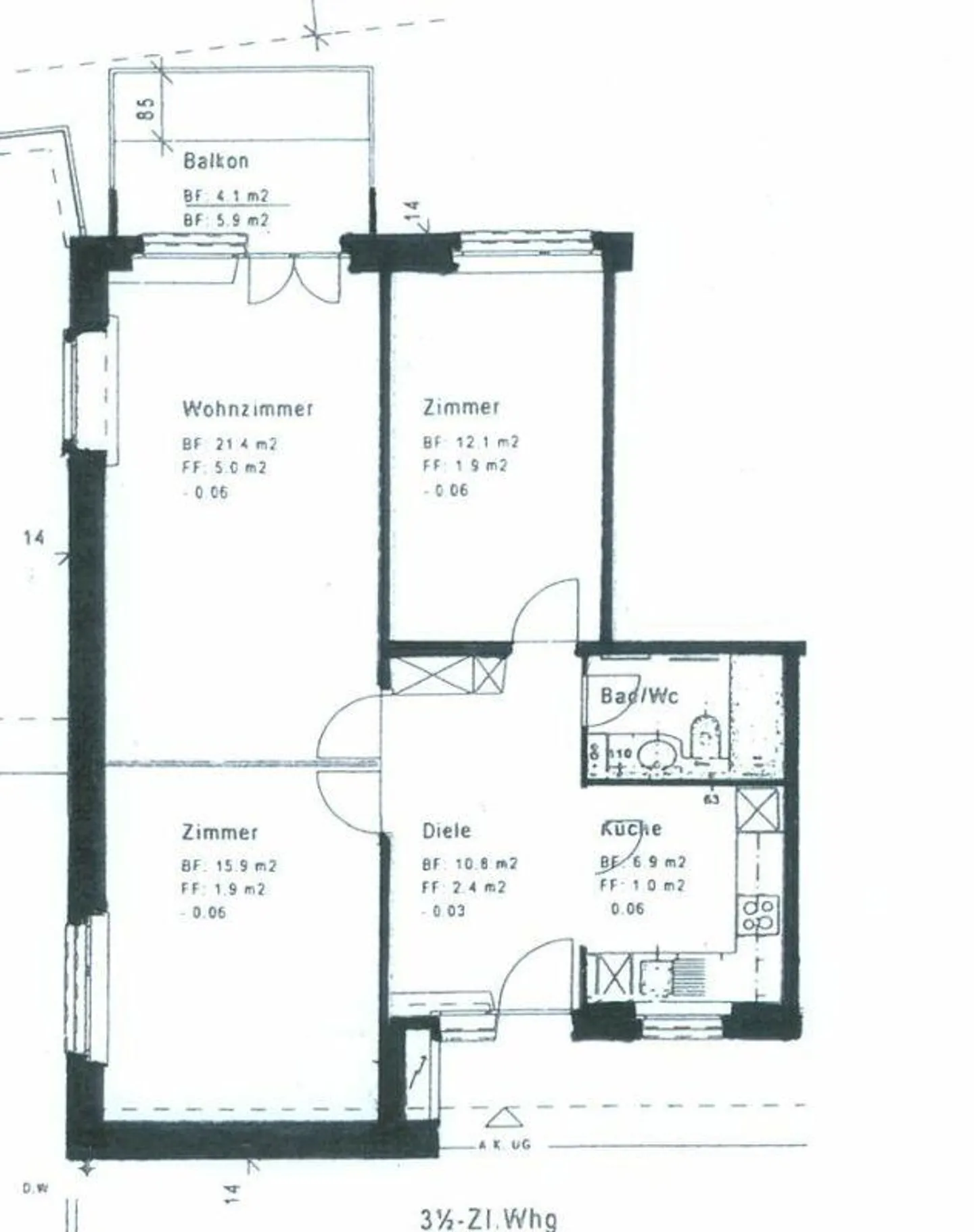
Appartamento luminoso vicino alla stazione ferroviaria di Adliswil
Nella popolare zona residenziale di Adliswil, affittiamo questo appartamento di 3,5 locali, ristrutturato nel 2011, a partire dal 16 febbraio 2026.
Il Zipfelweg 1 si trova a soli 3 minuti a piedi dalla stazione ferroviaria di Adliswil ed è circondato da varie opzioni di shopping.
L'appartamento è dotato come segue:
* Pavimento in parquet in tutte le stanze
* Pavimento in piastrelle facile da mantenere in bagno e cucina
* Cucina con lavastoviglie, piano cottura, forno e frigorifero
* Layout attraente
* ...
Ripartizione dei costi
- Affitto netto
- CHF 2’290
- Costi aggiuntivi
- CHF 100
- Totale delle locazioni
- CHF 2’290
Dettagli immobile
- Disponibile dal
- Su accordo
- Stanze
- 3.5
- Bagni
- 1
- Piano
- 2°



