Attico in affitto - Vorauen, 8750 Klöntal
Perché amerai questa proprietà
Terrazze spaziose per rilassarsi
Cucina moderna con attrezzature
Posizione tranquilla vicino alla natura
Organizza una visita
Prenota una visita con Hegner-Carisch oggi!
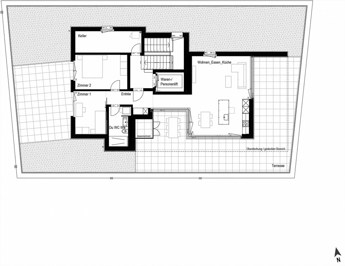
Appartamento attico di 3,5 stanze in edificio commerciale con due grandi terrazze
Questo luminoso appartamento attico di 3,5 stanze è l'unico appartamento in un edificio commerciale - ideale per chi apprezza la privacy e la tranquillità.
L'appartamento si distingue per due ampie terrazze, una cucina moderna e ben attrezzata, e un bagno con torre di lavaggio privata (lavatrice e asciugatrice). Il locale cantina si trova comodamente allo stesso piano.
Gli animali domestici (cani e gatti) purtroppo non sono ammessi in questo complesso.
-----------------------------
Il complesso resi...
Ripartizione dei costi
- Affitto netto
- CHF 2’800
- Costi aggiuntivi
- CHF 250
- Totale delle locazioni
- CHF 2’800
Dettagli immobile
- Disponibile dal
- Su accordo
- Stanze
- 3.5
- Anno di costruzione
- 2025
- Superficie abitabile
- 82 m²
- Piano
- 3°
- Piani dell'edificio
- 3



