Appartamento in affitto - Rue De Chêne-Bougeries, 1224 Chêne-Bougeries
Perché amerai questa proprietà
Cucina moderna attrezzata
Balcone con vista
Parchi giochi nelle vicinanze
Organizza una visita
Prenota una visita oggi!
La tua sistemazione in un contesto verde
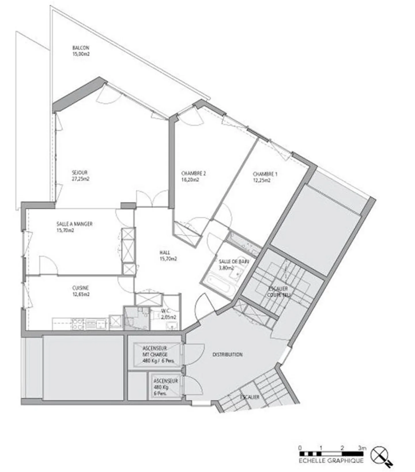
Sogni di avere molto spazio in cui tutta la tua famiglia può prosperare? Non è solo il concetto di questo appartamento ad essere generoso, ma anche l'ambiente nel bellissimo quartiere verde di Gradelle. Fantastici parchi giochi e la vicinanza a una scuola sono solo alcuni dei vantaggi tra gli altri.
Per la tua qualità della vita:
- Una cucina completamente attrezzata
- Un ampio soggiorno, sala da pranzo con balcone
- Due camere da letto
- Un bagno con vasca e WC
- Un WC separato
- Un ingresso con armad...
Ripartizione dei costi
- Affitto netto
- CHF 3’360
- Costi aggiuntivi
- CHF 360
- Totale delle locazioni
- CHF 3’360
Dettagli immobile
- Disponibile dal
- 01.01.1970
- Stanze
- 5.5
- Anno di costruzione
- 1963
- Superficie abitabile
- 108 m²
- Piano
- 6°



