Appartamento in affitto - Neudorfstrasse, 9240 Uzwil
Perché amerai questa proprietà
Camere luminose con grandi finestre
Zona giorno e pranzo elegante
Finiture di cucina di alta qualità
Organizza una visita
Prenota una visita oggi!
Realizza il tuo sogno abitativo
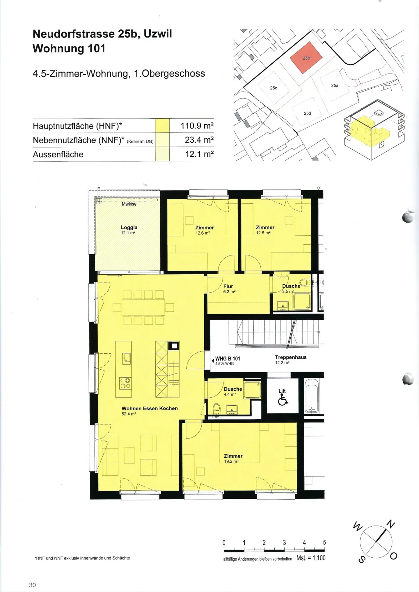
L'appartamento di 4,5 stanze, situato in posizione centrale, è costruito secondo standard elevati e colpisce per i seguenti punti salienti:
* Stanze illuminate grazie a grandi finestre
* Bellissimi pavimenti in parquet e piastrelle senza tempo
* Elegante zona giorno e pranzo
* Cucina di alta qualità con materiali selezionati
* Tre ampie camere (da letto)
* Due bagni confortevoli
* Armadio a muro nell'area d'ingresso
* Loggia protetta
* Lavatrice privata nell'appartamento
* Cantina, garage sotterraneo e lo...
Ripartizione dei costi
- Affitto netto
- CHF 2’240
- Costi aggiuntivi
- CHF 220
- Totale delle locazioni
- CHF 2’240
Dettagli immobile
- Disponibile dal
- Su accordo
- Stanze
- 4.5
- Bagni
- 2
- Superficie abitabile
- 110 m²
- Piano
- 1°




