Appartamento in affitto - Kürzestrasse, 4658 Däniken SO
Perché amerai questa proprietà
Posizione centrale e tranquilla
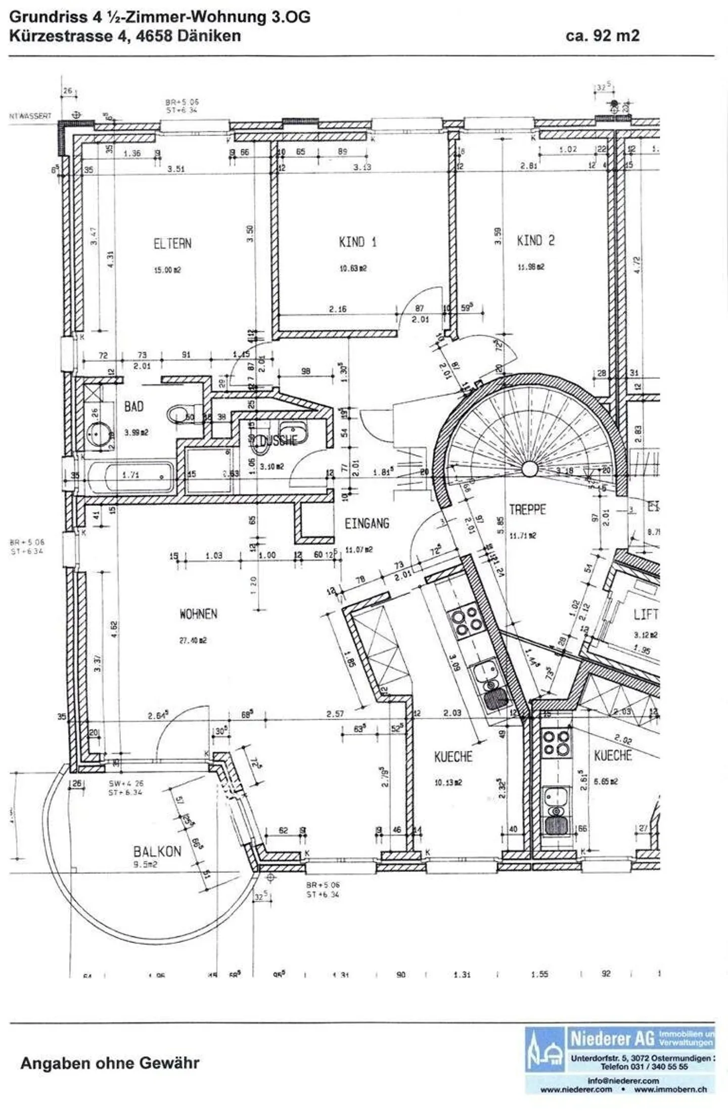
Ampio balcone di 9,5 m²
Negozi e scuole vicini
Organizza una visita
Prenota una visita oggi!
Appartamento 4½ locali, CENTRALE, TRANQUILLO, ACCOGLIENTE
Stai cercando un appartamento di 4½ locali per la tua famiglia, o hai bisogno di più stanze? Allora sei nel posto giusto.
L'appartamento si trova al 3° piano ed è di 92 m2. La proprietà è tranquilla e centralmente situata. I negozi, i ristoranti e le scuole sono direttamente nelle vicinanze.
-Rivestimento del pavimento soggiorno/corridoio/sala da pranzo: parquet
-Rivestimento del pavimento camere da letto genitori e bambini: parquet
-Piano cucina: resina sintetica
-Rivestimento del pavimento local...
Ripartizione dei costi
- Affitto netto
- CHF 1’900
- Costi aggiuntivi
- CHF 355
- Totale delle locazioni
- CHF 1’900
Dettagli immobile
- Disponibile dal
- 01.07.2026
- Stanze
- 4.5
- Anno di costruzione
- 1990
- Superficie abitabile
- 92 m²
- Piano
- 3°



