Appartamento ammobiliato in affitto - Gempenstrasse, 4053 Basel
Perché amerai questa proprietà
Spazio abitativo completamente arredato
Cucina moderna con lavastoviglie
Balcone in uso condiviso
Organizza una visita
Prenota una visita oggi!
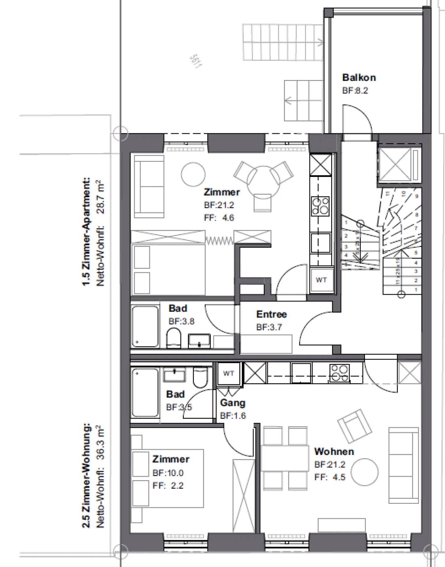
Nuovi, moderni appartamenti con 1,5 locali a basilea città
In Gempenstrasse 78, nel popolare quartiere residenziale di <>, affittiamo a partire dal 1° maggio 2025 un appartamento di alta qualità con 1,5 locali, arredato.
I <> dell'appartamento:
- Completamente arredato
- Cucina con lavastoviglie, piano cottura a induzione e forno
- Parquet di rovere nelle zone giorno e notte
- Bagni con doccia a filo pavimento e mobili da bagno modernissimi
- Lavatrice e asciugatrice in ogni appartamento
- Balcone in uso comune nel cortile interno
La posizione:
In p...
Ripartizione dei costi
- Affitto netto
- CHF 1’600
- Costi aggiuntivi
- CHF 100
- Totale delle locazioni
- CHF 1’600
Dettagli immobile
- Disponibile dal
- Su accordo
- Stanze
- 1.5
- Bagni
- 1
- Anno di ristrutturazione
- 2021
- Superficie abitabile
- 29 m²
- Piano
- 1°



