Appartamento in affitto - Dorfstrasse, 6142 Gettnau
Perché amerai questa proprietà
Camere spaziose e luminose
Balcone con vista sul tramonto
Cucina moderna con isola
Organizza una visita
Prenota una visita oggi!
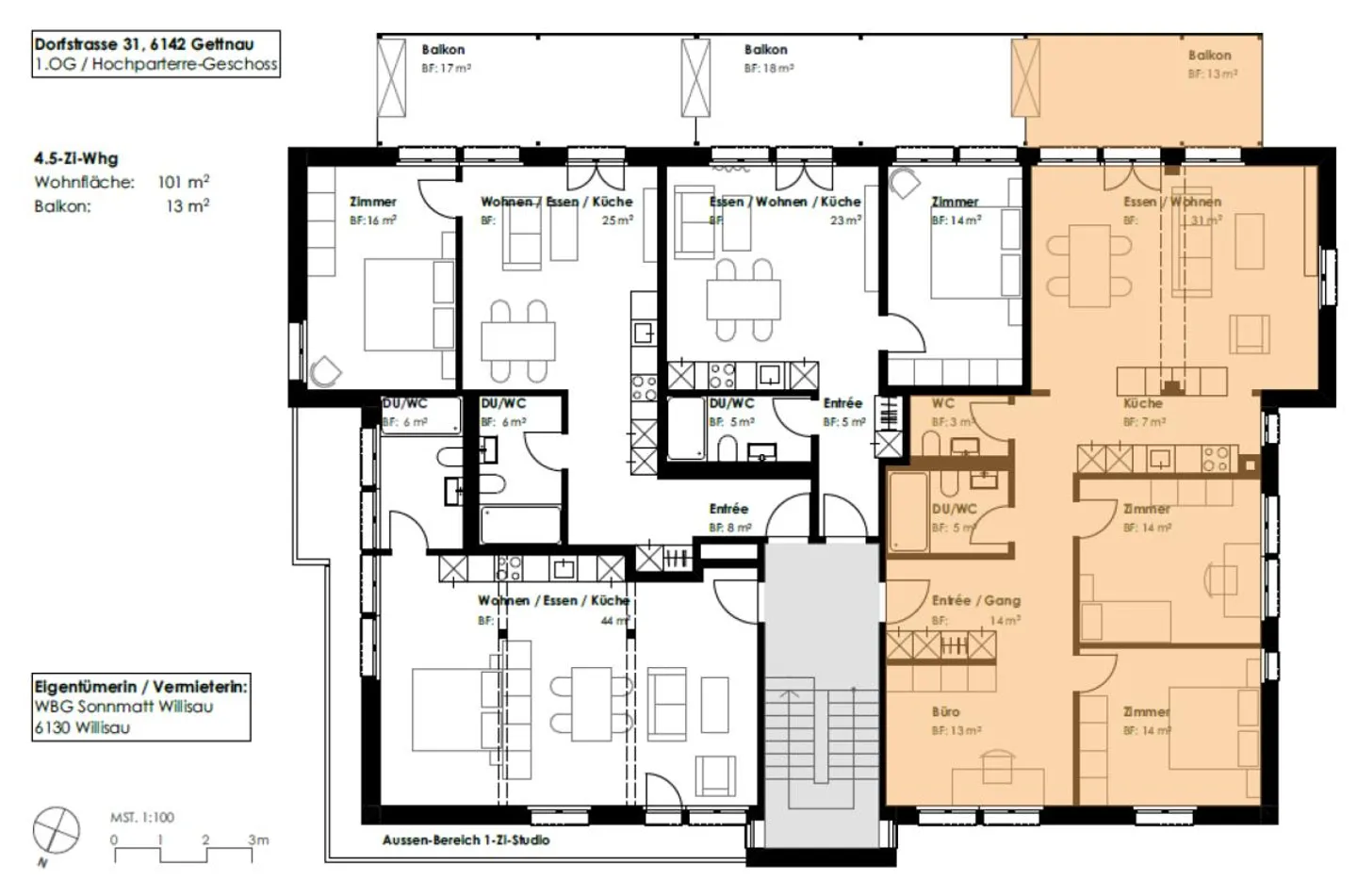
Bellissimo nuovo appartamento di 4,5 stanze
Stai cercando una nuova casa da molto tempo?
Appartamento:
- Cucina moderna e pratica con isola di lavoro
- Pavimenti in parquet e piastrelle
- Stanze generose e piene di luce
- Balcone con bella vista e sole serale
- Bagno con doccia walk-in
- WC separato
Posizione:
- Vicino ai mezzi pubblici (stazione ferroviaria a 2 minuti)
- Negozi raggiungibili a piedi
Parcheggio:
I posti auto esterni possono essere affittati per 40 CHF al mese.
Si prega di notare che le foto mostrate non provengono dall'appartamento pu...
Ripartizione dei costi
- Affitto netto
- CHF 1’850
- Costi aggiuntivi
- CHF 200
- Totale delle locazioni
- CHF 1’850
Dettagli immobile
- Disponibile dal
- Su accordo
- Stanze
- 4.5
- Bagni
- 1
- Anno di ristrutturazione
- 2025
- Superficie abitabile
- 101 m²
- Piano
- 1°



