Attico in affitto - Cadonaustrasse, 7000 Chur
Perché amerai questa proprietà
Design interno elegante
Terrazza spaziosa per relax
Vicino alla natura e alla città
Organizza una visita
Prenota una visita oggi!
Casa G - Vivere in Alto e Godere della Natura - Nuovo Sviluppo
Vivere in alto – godere della natura – vivere vicino alla città - Questo descrive meglio il nuovo sviluppo Töbeli al margine settentrionale dell'insediamento di Chur. In una prima fase, verranno costruiti 54 moderni appartamenti in affitto da 2,5 a 5,5 stanze nelle case D a I.
Gli appartamenti colpiscono per i loro piani ben pensati, spazi abitativi luminosi e un design interno elegante. Il progetto previsto combina vita moderna con la vicinanza alla natura e alla città. La posizione proprio acca...
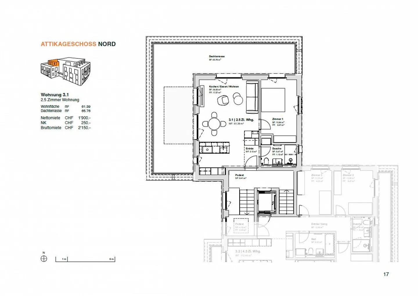
Ripartizione dei costi
- Affitto netto
- CHF 2’150
- Costi aggiuntivi
- CHF 250
- Totale delle locazioni
- CHF 2’150
Dettagli immobile
- Disponibile dal
- Su accordo
- Stanze
- 2.5
- Anno di costruzione
- 2026
- Superficie abitabile
- 61 m²
- Piano
- 3°
- Piani dell'edificio
- 4



