Appartamento in affitto - Cadonaustrasse, 7000 Chur
Perché amerai questa proprietà
Design interno elegante
Balcone con vista panoramica
Vicino al parco Fürstenwald
Organizza una visita
Prenota una visita oggi!
Casa I - Vivere in alto e godere della natura - Nuovo sviluppo
Vivere in alto – Godere della natura – Vivere vicino alla città - Questo descrive meglio il nuovo sviluppo Töbeli al margine settentrionale dell'insediamento di Chur. In una prima fase, verranno costruiti 54 appartamenti in affitto moderni da 2,5 a 5,5 stanze nelle case D a I.
Gli appartamenti colpiscono per i loro piani ben pensati, spazi abitativi luminosi e un design d'interni elegante. Il progetto previsto combina vita moderna con la vicinanza alla natura e alla città. La posizione proprio ac...
Ripartizione dei costi
- Affitto netto
- CHF 3’000
- Costi aggiuntivi
- CHF 300
- Totale delle locazioni
- CHF 3’000
Dettagli immobile
- Disponibile dal
- Su accordo
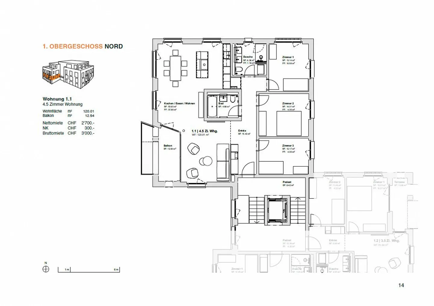
- Stanze
- 4.5
- Anno di costruzione
- 2026
- Superficie abitabile
- 120 m²
- Piano
- 1°
- Piani dell'edificio
- 4



