Appartamento in affitto - Cadonaustrasse, 7000 Chur
Perché amerai questa proprietà
Design interno elegante
Terrazza per rilassarsi
Vicino alla riserva naturale
Organizza una visita
Prenota una visita oggi!
COPIA - Casa G - Vivere Elevato e Godere della Natura - Nuovo Sviluppo
Vivere elevato – godere della natura – vivere vicino alla città - Questo descrive meglio il nuovo sviluppo Töbeli al margine settentrionale dell'insediamento di Chur. In una prima fase, verranno costruiti 54 appartamenti in affitto moderni da 2,5 a 5,5 stanze nelle case D a I.
Gli appartamenti impressionano per i piani ben pensati, spazi abitativi luminosi e un design interno elegante. Il progetto previsto combina vita moderna con la vicinanza alla natura e alla città. La posizione proprio accant...
Ripartizione dei costi
- Affitto netto
- CHF 2’550
- Costi aggiuntivi
- CHF 250
- Totale delle locazioni
- CHF 2’550
Dettagli immobile
- Disponibile dal
- Su accordo
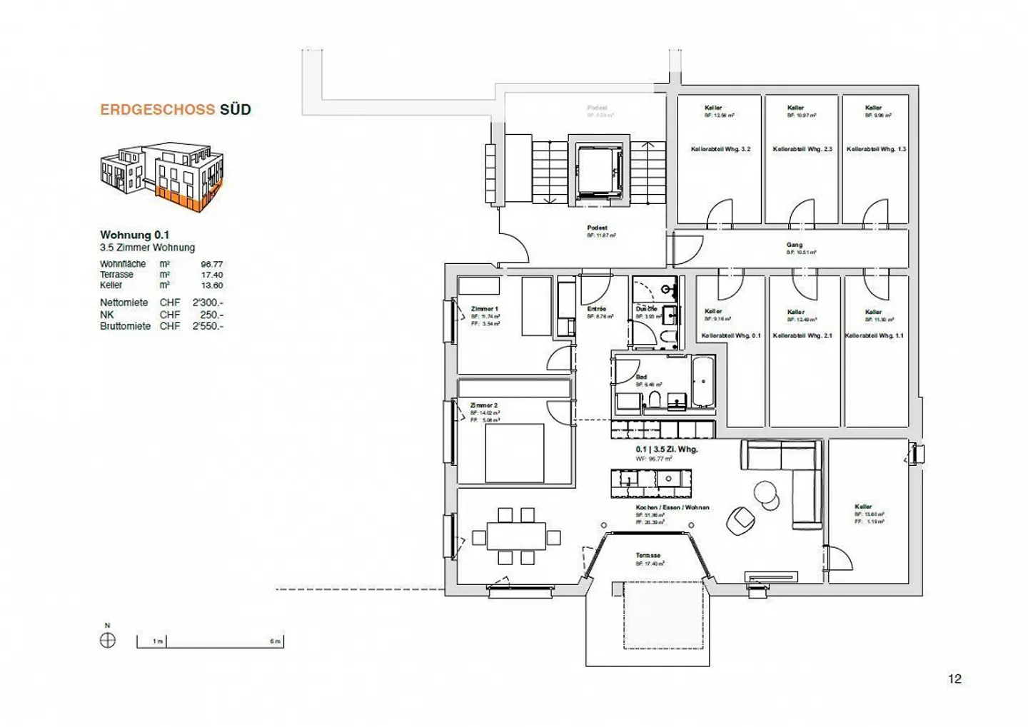
- Stanze
- 3.5
- Anno di costruzione
- 2026
- Superficie abitabile
- 96 m²
- Piano
- Terra
- Piani dell'edificio
- 4



