Appartamento in affitto - Bifangstrasse, 5610 Wohlen AG
Perché amerai questa proprietà
Spazio abitativo luminoso
Cucina moderna in granito
Fermata dell'autobus vicina
Organizza una visita
Prenota una visita con ***Kontaktanfrage oggi!
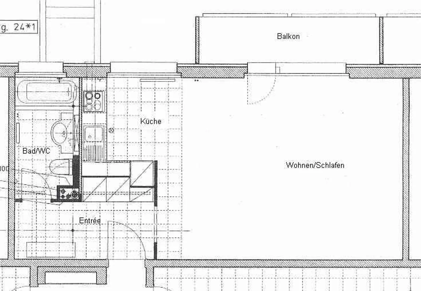
Appartamento 1 stanza ben divisibile
Disponibile immediatamente o su appuntamento, affittiamo questo bellissimo appartamento 1 stanza. La proprietà di Bifangstrasse 22/24/26 ha ricevuto un nuovo involucro edilizio con grandi nuovi balconi nel 2011.
L'appartamento colpisce per le seguenti caratteristiche:
- Soggiorno/pranzo/camera con parquet - cucina luminosa con pavimento in piastrelle, piano in granito, ceramica vetrosa e grande frigorifero - bagno moderno con finestra, piastrelle chiare sulle pareti e sul pavimento e vasca da bag...
Ripartizione dei costi
- Affitto netto
- CHF 1’030
- Costi aggiuntivi
- CHF 250
- Totale delle locazioni
- CHF 1’030
Dettagli immobile
- Disponibile dal
- Su accordo
- Stanze
- 1
- Anno di ristrutturazione
- 2012
- Superficie abitabile
- 47 m²
- Piano
- Terra
- Piani dell'edificio
- 1



