Attico in affitto - Rumiweg 9c, 4900 Langenthal
Perché amerai questa proprietà
Ampio soggiorno luminoso
Terrazze e logge generose
Accesso diretto con ascensore
Organizza una visita
Prenota una visita oggi!
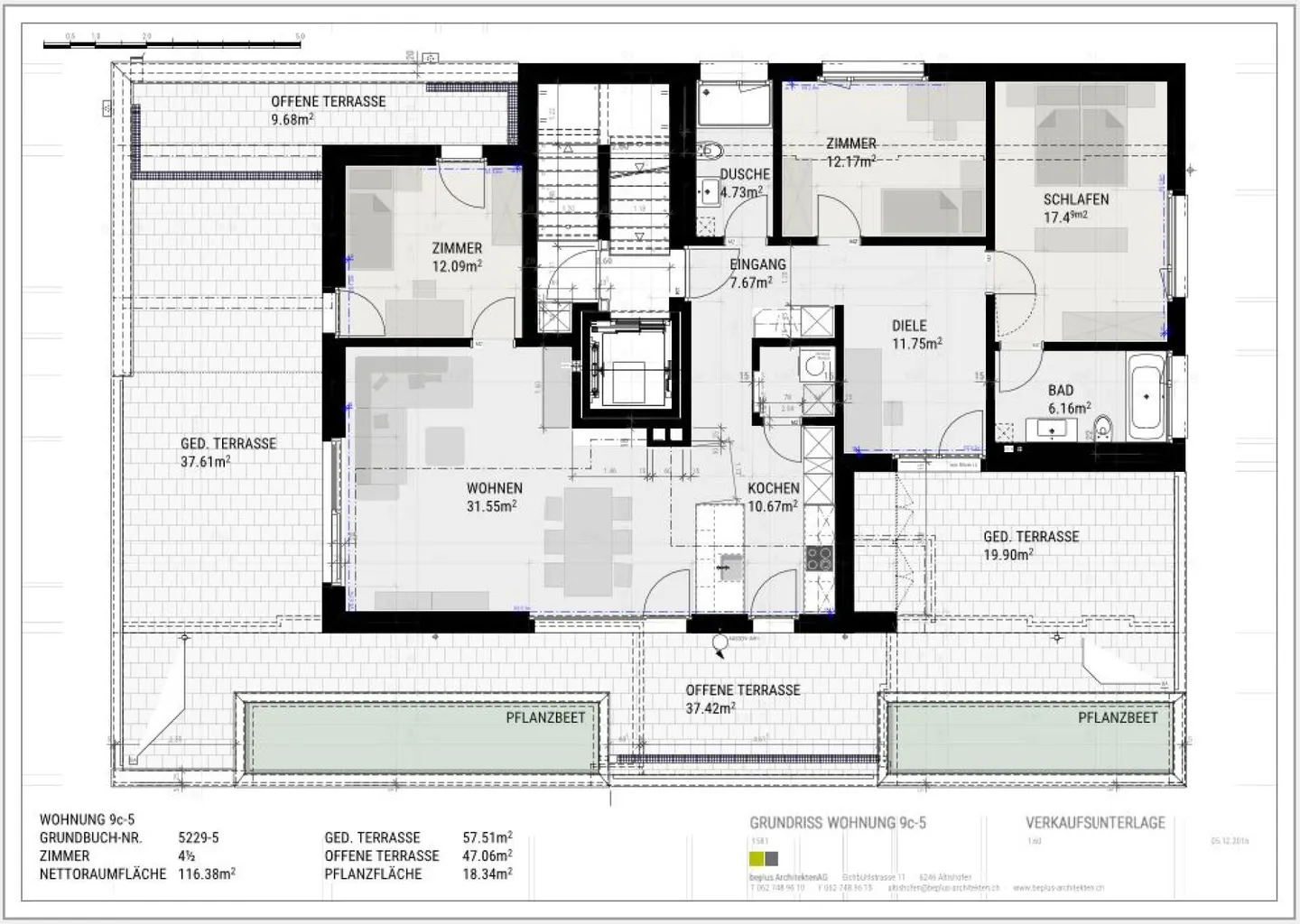
Appartamento attico 4½ locali (116 m²)
L'appartamento attico attraente colpisce per la sua spaziosità, la disposizione ben pensata e l'alto standard di finitura. L'area soggiorno e pranzo con cucina aperta crea un'atmosfera luminosa e accogliente e offre accesso diretto alle generose terrazze e logge - ideale per estendere lo spazio abitativo nel verde.
Punti salienti in sintesi:
- Appartamento attico 4½ locali, 116 m² di superficie abitabile
- Soggiorno e sala da pranzo luminosi con cucina aperta
- Due bagni
- Torre di lavaggio propria (...
Ripartizione dei costi
- Affitto netto
- CHF 2’750
- Costi aggiuntivi
- CHF 350
- Totale delle locazioni
- CHF 2’750
Dettagli immobile
- Disponibile dal
- Su accordo
- Stanze
- 4.5
- Anno di costruzione
- 2017
- Superficie abitabile
- 116 m²
- Piano
- 2°



