Appartamento in affitto - Rue D'aarberg / Aarbergstrasse 9b, 2560 Nidau
Perché amerai questa proprietà
Parquet elegante
Balcone con vista canale
Vicino alla stazione di Biel
Organizza una visita
Prenota una visita con Céline oggi!
Posizione top, moderno - La tua nuova casa sul canale Zihl!
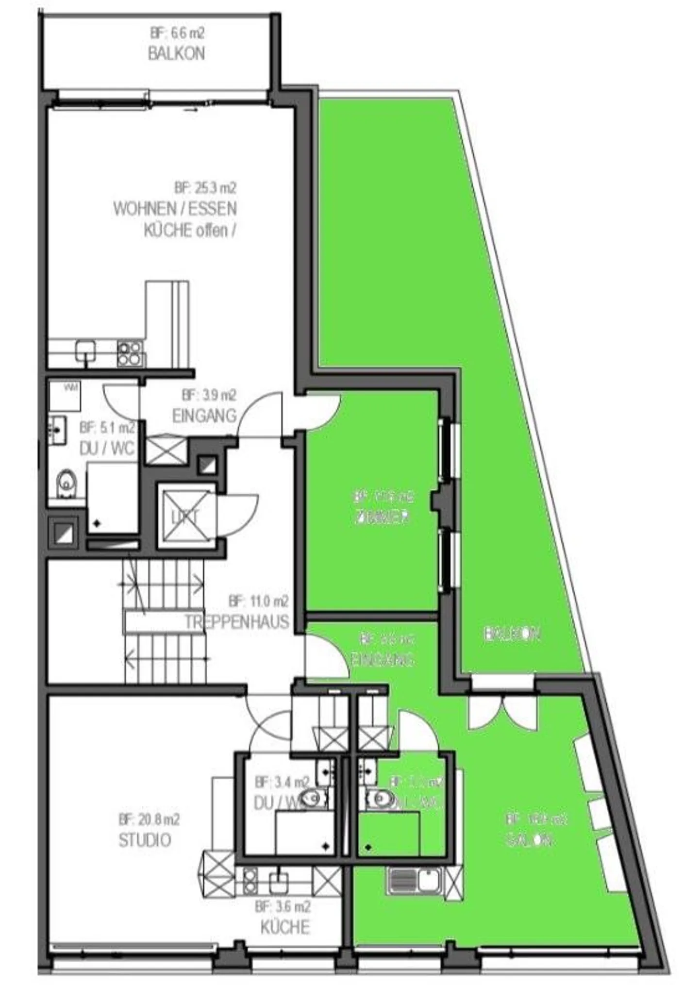
Affittiamo un moderno e spazioso monolocale direttamente sul canale Zihl, disponibile immediatamente o su appuntamento.
La cucina è dotata di un piano cottura in ceramica di alta qualità e di un forno quasi nuovo. L'area soggiorno colpisce per un elegante pavimento in parquet che crea un'atmosfera accogliente e affascinante. Un armadio a muro offre ulteriore spazio di archiviazione. Per il massimo comfort abitativo, è disponibile un balcone con vista sul canale.
Il monolocale si trova in una delle...
Ripartizione dei costi
- Affitto netto
- CHF 1'150
- Costi aggiuntivi
- CHF 100
- Totale delle locazioni
- CHF 1'150
Dettagli immobile
- Disponibile dal
- Su accordo
- Piano
- 1°


