Attico in affitto - Scheuchenstrasse 9a, 8500 Frauenfeld
Perché amerai questa proprietà
Elegante pavimento in rovere
Stanze luminose con vista
Cucina moderna in tonalità scure
Organizza una visita
Prenota una visita con Anrufen oggi!
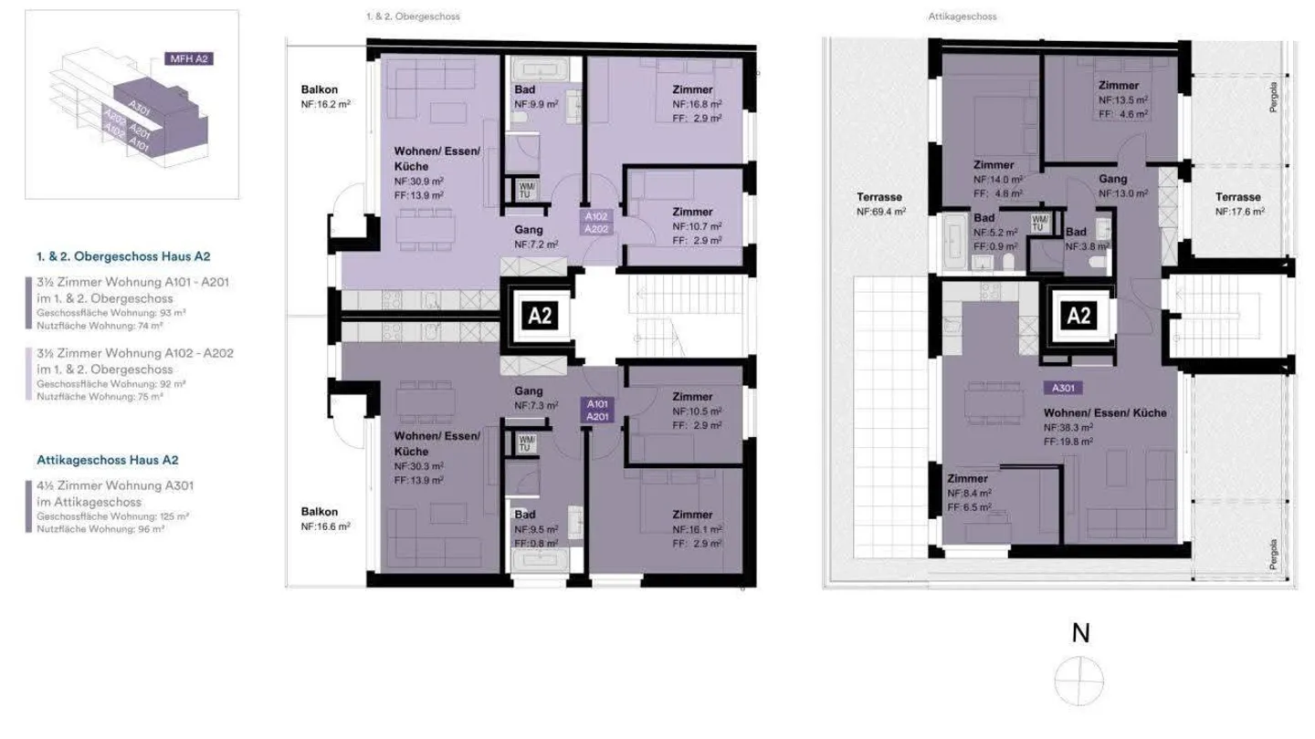
Appartamento attico 4.5 stanze
Buchfink - un battito d'ala dal centro, appartamento attico 4.5 stanze a 8500 Frauenfeld
Vivi in una zona centrale della città in un appartamento ben progettato e di stile..
Le planimetrie e l'arredamento interno sono stati progettati in modo funzionale ed estetico dai nostri architetti. Un parquet in rovere nella zona giorno, una cucina in ottica scura, stanze luminose e molti dettagli fantastici contribuiscono all'assoluto "Pro" di questa oasi di vita cittadina.
L'appartamento attico si distingue...
Ripartizione dei costi
- Affitto netto
- CHF 2’950
- Costi aggiuntivi
- CHF 200
- Totale delle locazioni
- CHF 2’950
Dettagli immobile
- Disponibile dal
- Su accordo
- Stanze
- 4.5
- Anno di costruzione
- 2021
- Anno di ristrutturazione
- 2021
- Superficie abitabile
- 96 m²
- Piano
- 3°
- Piani dell'edificio
- 3



