Appartamento in affitto - Saxweg 9a, 9470 Buchs SG
Perché amerai questa proprietà
Spazi abitativi luminosi
Finiture moderne di alta qualità
Posizione soleggiata e ben collegata
Organizza una visita
Prenota una visita con Immoverita oggi!
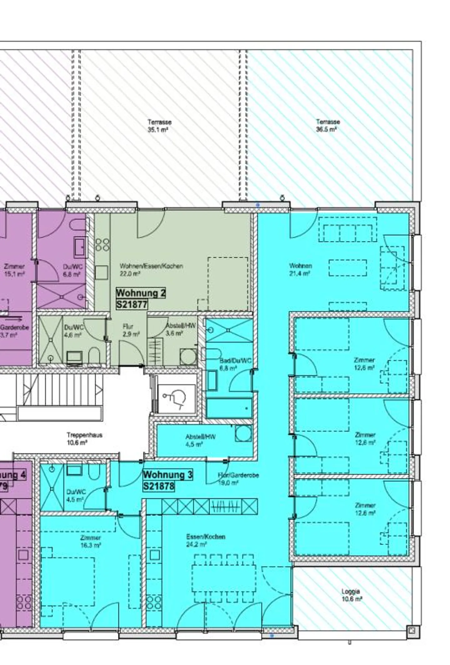
Vivere come in una casa a terrazza - spazioso appartamento di 5 ½ locali con vista mozzafiato nella parte meridionale di Buchs SG.
Con una superficie abitabile netta di 134 m² e le meravigliose aree esterne, questo spazioso appartamento di 5 ½ locali offre molto spazio abitativo. Oltre alla sua generosità, colpisce anche per le belle stanze luminose. La pratica disposizione del piano e la separazione tra cucina-pranzo e soggiorno creano un'atmosfera abitativa piacevole. L'alto standard di finitur...
Ripartizione dei costi
- Affitto netto
- CHF 2’600
- Costi aggiuntivi
- CHF 250
- Totale delle locazioni
- CHF 2’600
Dettagli immobile
- Disponibile dal
- Su accordo
- Stanze
- 5.5
- Bagni
- 2
- Anno di costruzione
- 2025
- Superficie abitabile
- 134 m²
- Piano
- 1°
- Piani dell'edificio
- 2




