Appartamento in affitto - Boulevard De Pérolles 91, 1700 Fribourg
Perché amerai questa proprietà
Fascino di un edificio storico
Soggiorno accogliente con balcone
Posizione ideale vicino ai servizi
Organizza una visita
Prenota una visita oggi!
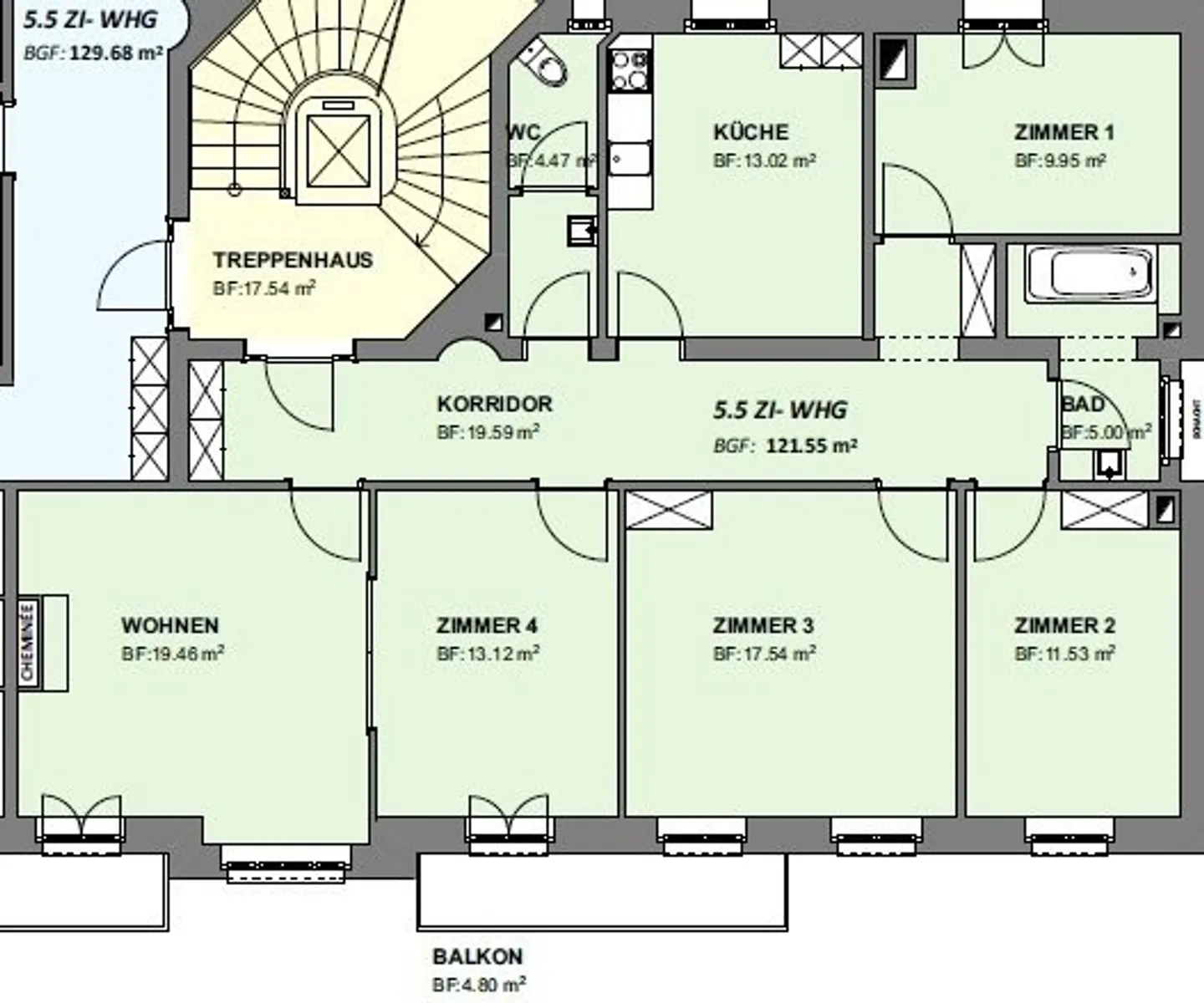
Magnifico appartamento ristrutturato di 5,5 stanze
Situato in un bel palazzo storico nella città di Friburgo, questo appartamento di 5,5 stanze ricco di fascino è stato ristrutturato con gusto.
La sua posizione vicino a tutti i servizi è ideale per giovani adulti o una famiglia.
Per soddisfarvi, l'appartamento è disposto come segue:
- Ingresso
- Soggiorno con camino e balcone
- 4 camere da letto, di cui una con balcone
- Bagno
- WC separato
- Una cantina
Non perdere questo oggetto, contattaci per una visita!
Ripartizione dei costi
- Affitto netto
- CHF 2’710
- Costi aggiuntivi
- CHF 330
- Totale delle locazioni
- CHF 2’710
Dettagli immobile
- Disponibile dal
- 01.01.1970
- Stanze
- 5.5
- Superficie abitabile
- 114 m²
- Superficie utilizzabile
- 114 m²
- Piano
- 3°



