Appartamento in affitto - Stahlstrasse 9, 9000 St. Gallen
Perché amerai questa proprietà
Ampio soggiorno con balcone
Cucina aperta moderna
Ambiente pet-friendly
Organizza una visita
Prenota una visita oggi!
Inizio verso la propria felicità
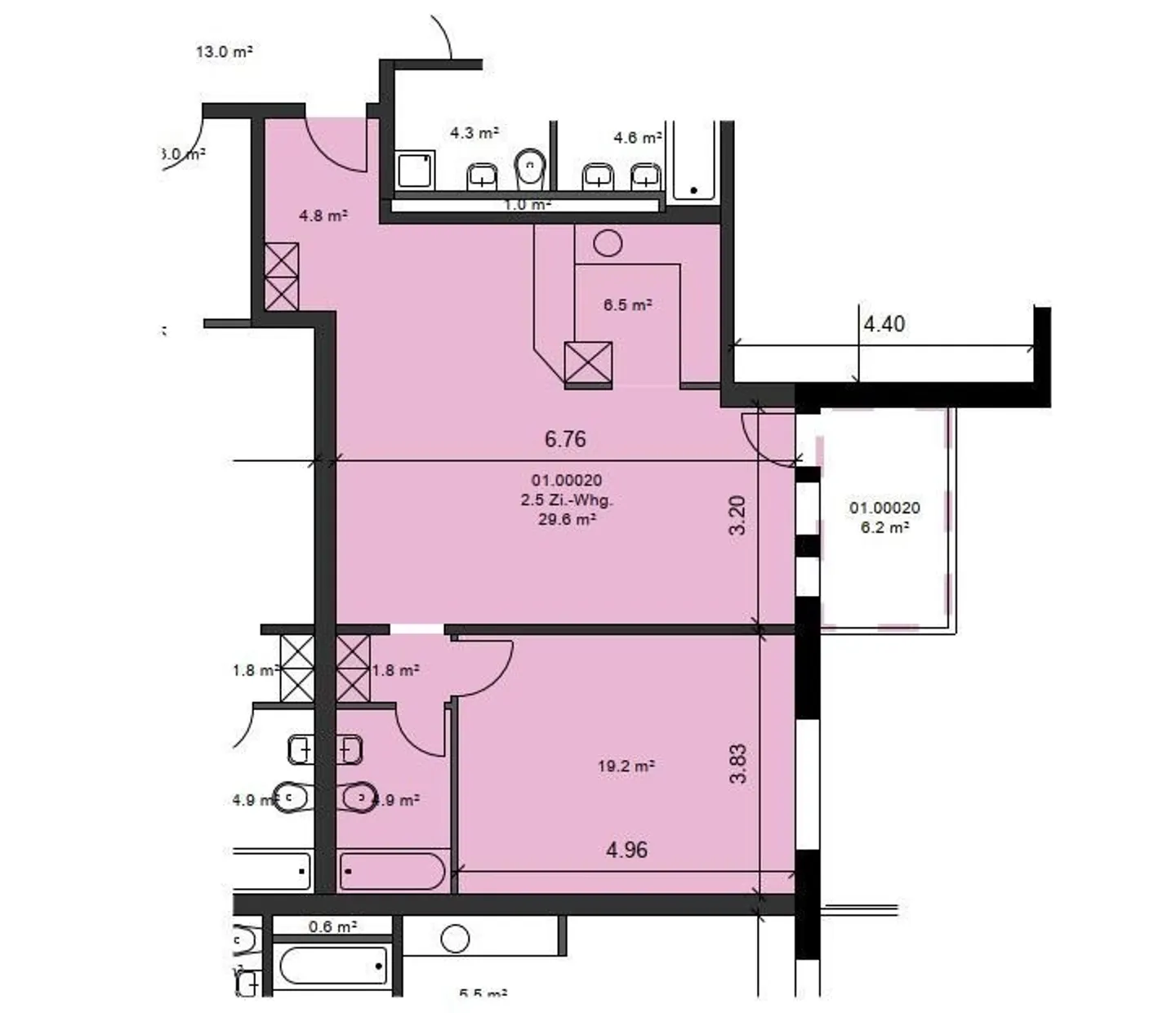
Disponibile immediatamente o su appuntamento, affittiamo questo bell'appartamento di 2,5 locali a San Gallo.
L'appartamento offre le seguenti comodità:
- Soggiorno e camera da letto con pavimento in parquet
- Cucina e bagno con pavimento in piastrelle facile da mantenere
- Ampio soggiorno e zona pranzo con accesso al balcone
- Cucina aperta con piano cottura in vetroceramica, forno, lavastoviglie e molto spazio di stoccaggio per i tuoi utensili da cucina
- Bagno con WC, lavabo, armadietto a specchio ...
Ripartizione dei costi
- Affitto netto
- CHF 1’480
- Costi aggiuntivi
- CHF 210
- Totale delle locazioni
- CHF 1’480
Dettagli immobile
- Disponibile dal
- Su accordo
- Stanze
- 2.5
- Anno di costruzione
- 1984
- Anno di ristrutturazione
- 2010
- Superficie abitabile
- 65 m²
- Piano
- 3°



