1 / 7

Appartamento in affitto - Im Ettingerhof 9, 4055 Basel

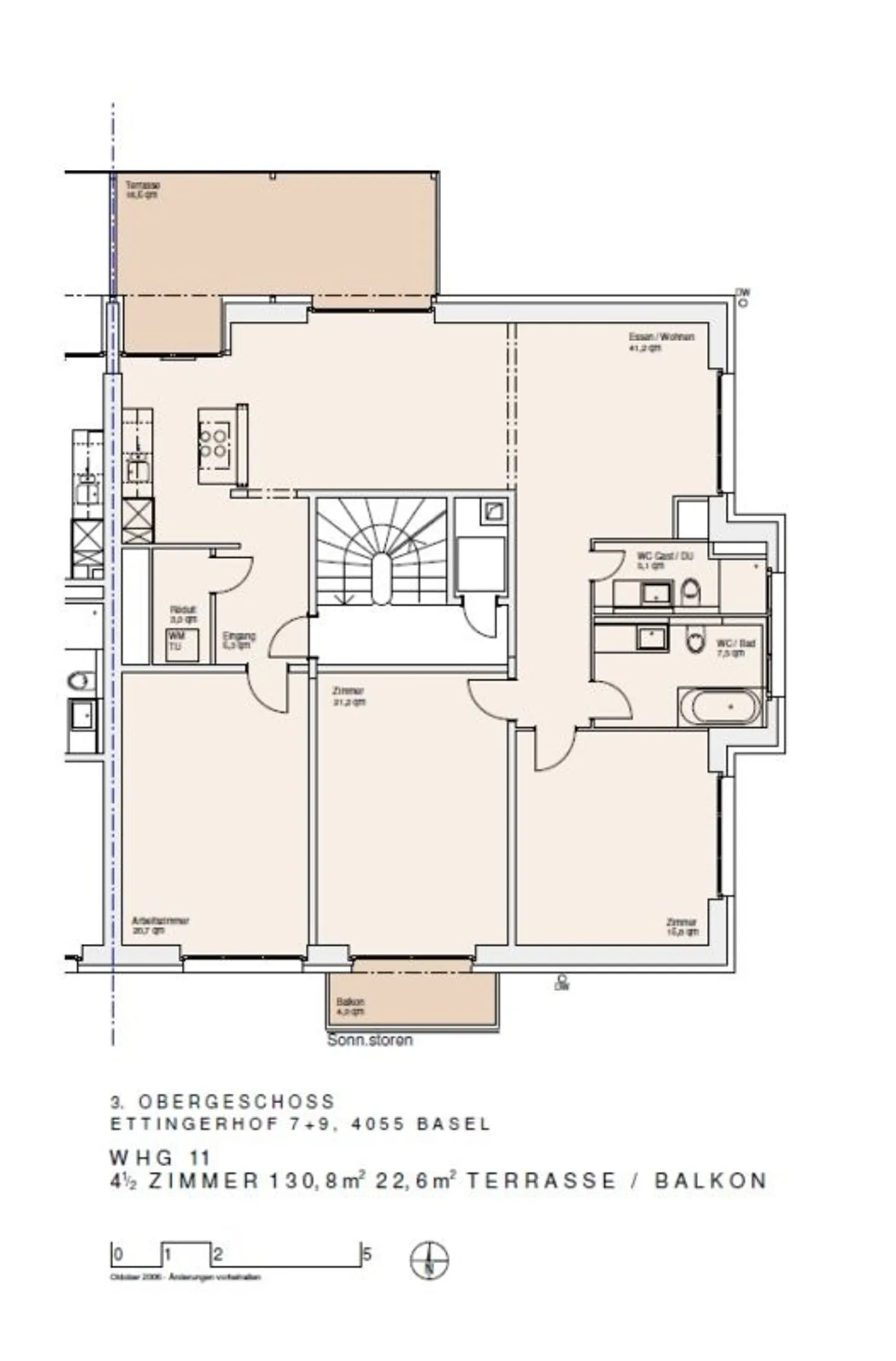
4.5 rooms • 3° piano
CHF 2’540.-
-

Perché amerai questa proprietà

Cucina aperta moderna

Ampia terrazza per relax

Sistema di ventilazione controllato

Organizza una visita

Prenota una visita oggi!

Questa descrizione è stata tradotta automaticamente da Tedesco.

Esclusivo e spazioso - in una posizione tranquilla

Esclusivo e spazioso - in una posizione tranquilla

Dal 1° febbraio 2026, o su accordo, affittiamo questo esclusivo appartamento di 4,5 locali con il seguente standard di costruzione:

- cucina moderna e aperta con lavastoviglie e piano cottura in vetroceramica

- doccia/WC

- propria lavatrice e asciugatrice

- grande terrazza

- sistema di ventilazione controllato

- cantina

- ascensore

Diverse possibilità di acquisto e la scuola Wasgenring sono raggiungibili in pochi minuti a piedi. La fermata dell'autobus B...

Dettagli immobile

Disponibile dal
01.02.2026
Stanze
4.5
Piano

Caratteristiche

Giardino
Balcone
Ascensore
Lavatrice

Agenzia

Immohelp AG
Immohelp AG
(2 reviews)
Ref: 31.2.1011.1654653.92a35e0a-9f63-11f0-89d7-069ae14c7a06

Località

Im Ettingerhof 9, 4055 Basel

Fonti