Appartamento in affitto - 8951 Fahrweid
Perché amerai questa proprietà
Ampio balcone di 23 m²
Zona familiare luminosa
Cucina moderna con isola
Organizza una visita
Prenota una visita con Emine oggi!
Dove la vita moderna incontra un'atmosfera accogliente
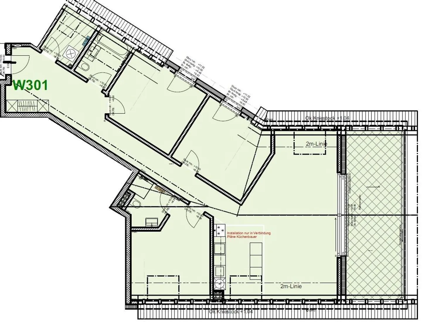
Questo spazioso appartamento di 4 stanze è disponibile dal 1° dicembre 2025 e offre un ambiente abitativo moderno e confortevole su 120 m² di superficie abitabile. Si trova in una zona residenziale tranquilla e adatta alle famiglie e combina luminosità, funzionalità e una disposizione ideale degli spazi.
?? Affitto: CHF 3'030.-/mese
(Inclusi costi accessori e costi di riscaldamento)
Opzionale: Posto auto per CHF 145.-/mese I tuoi punti salienti a colpo d'occhio
* 3 camere da letto luminose - ideali...
Ripartizione dei costi
- Affitto netto
- CHF 3’030
- Costi aggiuntivi
- CHF 230
- Totale delle locazioni
- CHF 3’030
Dettagli immobile
- Disponibile dal
- 01.12.2025
- Stanze
- 4
- Superficie abitabile
- 120 m²
- Superficie utilizzabile
- 120 m²
- Piano
- 3°
- Piani dell'edificio
- 4



