Appartamento in affitto - Avenue De Châtelaine 87, 1219 Châtelaine
Perché amerai questa proprietà
Cucina moderna attrezzata
Ingresso sicuro con ascensore
Vicino ai mezzi di trasporto
Organizza una visita
Prenota una visita oggi!
Châtelaine vicino a negozi e trasporti
L'avenue de Châtelaine è un luogo dove è bello vivere, vicino ai trasporti e ai negozi, a metà strada tra le organizzazioni internazionali e l'aeroporto senza subirne i disagi.
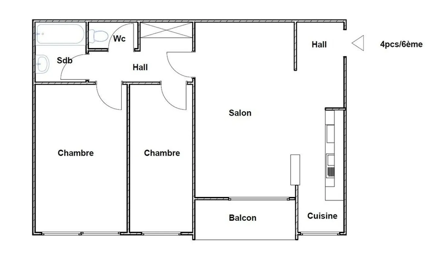
L'appartamento che vi proponiamo si trova al 2° piano di un edificio con ascensore e ingresso sicuro e si compone come segue:
Ingresso / disimpegno, un bagno/wc con attacchi per lavatrice / asciugatrice, una cucina moderna completamente attrezzata e arredata, aperta sul soggiorno - sala da pranzo e un angolo notte ben separ...
Ripartizione dei costi
- Affitto netto
- CHF 1’590
- Costi aggiuntivi
- CHF 190
- Totale delle locazioni
- CHF 1’590
Dettagli immobile
- Disponibile dal
- 01.02.2026
- Stanze
- 2
- Anno di costruzione
- 1965
- Superficie abitabile
- 36 m²
- Piano
- 2°



