Appartamento in affitto - Kasernenstrasse 86a, 9100 Herisau
Perché amerai questa proprietà
Ristrutturato con balcone
Posizione tranquilla e centrale
Vicino ai mezzi pubblici
Organizza una visita
Prenota una visita oggi!
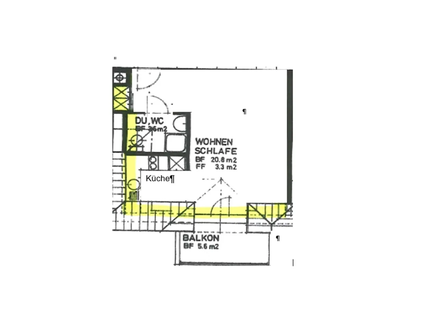
Appartamento 1.0 stanze in una posizione tranquilla
Affittiamo un appartamento ristrutturato con una camera al 3° piano con balcone, disponibile immediatamente o su appuntamento. Posizione tranquilla eppure centrale. Prossimità immediata alla casa di cura Heinrichsbad e al centro sportivo. Fermata dell'autobus nelle vicinanze.
Il futuro inquilino deve diventare membro della cooperativa edilizia Hemetli Herisau con un capitale azionario di almeno CHF 2'000.--. Il capitale azionario attualmente guadagna un interesse dell'1,00% all'anno. D'altra part...
Ripartizione dei costi
- Affitto netto
- CHF 860
- Costi aggiuntivi
- CHF 160
- Totale delle locazioni
- CHF 860
Dettagli immobile
- Disponibile dal
- Su accordo
- Stanze
- 1
- Anno di costruzione
- 1983
- Anno di ristrutturazione
- 2023
- Superficie abitabile
- 35 m²
- Piano
- 3°
- Piani dell'edificio
- 3



