Appartamento in affitto - Route De L'orée-Du-Bois 85, 2300 La Chaux-de-Fonds
Perché amerai questa proprietà
Cucina aperta moderna
Accesso alla terrazza privata
Vicino ai sentieri naturali
Organizza una visita
Prenota una visita oggi!
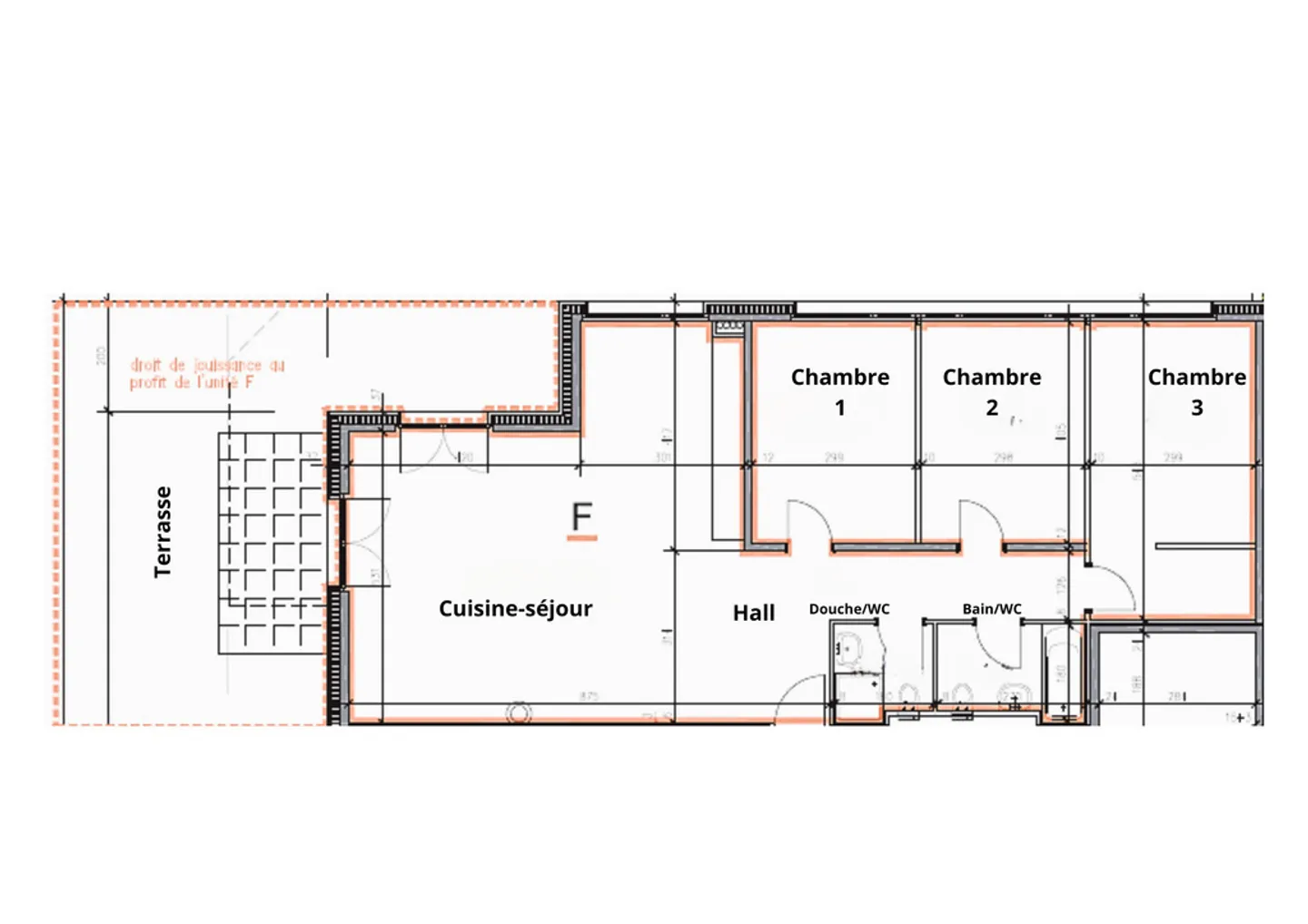
Appartamento 4.5 locali con terrazza
Situato in una zona ricercata e vicino alla natura, questo appartamento di 4.5 locali al piano terra offre 100 m2 di spazio, progettato idealmente per soddisfare le vostre esigenze.
Caratteristiche dell'appartamento F:
- Ingresso
- Cucina moderna a pianta aperta che si affaccia sul soggiorno
- Tre camere da letto
- Bagno/WC
- Doccia/WC
- Terrazza privata a livello del suolo
- Cantina
- Ascensore
Posto auto interno numero 19 disponibile al prezzo di CHF 170.00 al mese.
Vi informiamo che l'appartamento sa...
Ripartizione dei costi
- Affitto netto
- CHF 1’740
- Costi aggiuntivi
- CHF 170
- Totale delle locazioni
- CHF 1’740
Dettagli immobile
- Disponibile dal
- 01.04.2026
- Stanze
- 4.5
- Anno di costruzione
- 2016
- Superficie abitabile
- 100 m²
- Superficie utilizzabile
- 100 m²
- Piano
- Terra




