Appartamento in affitto - 8426 Lufingen
Perché amerai questa proprietà
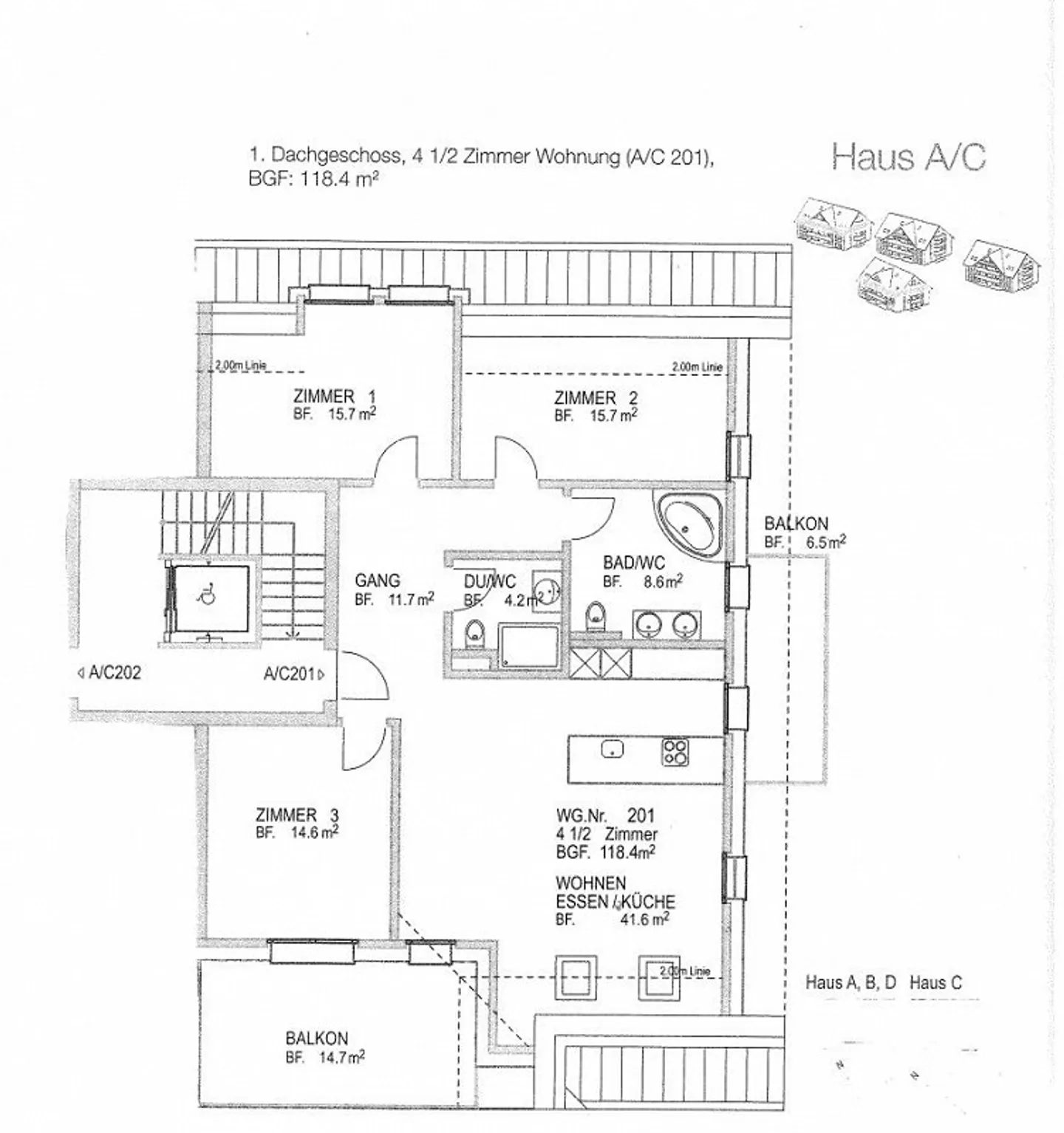
Ampia superficie di 118 m²
Due balconi di 21,2 m²
Ottimo accesso ai mezzi pubblici
Organizza una visita
Prenota una visita con Achermann oggi!
Appartamento moderno di 4,5 stanze a lufingen
Nell'edificio plurifamiliare, affittiamo un luminoso e moderno appartamento di 4,5 stanze al 1° piano mansardato con una generosa superficie abitabile di 118 m² e due balconi con una superficie totale di 21,2 m².
Lufingen offre i seguenti vantaggi:
- Ottima connessione ai mezzi pubblici
- Vicinanza a Zurigo, Winterthur e all'aeroporto
- Negozi nelle immediate vicinanze
- Basso tasso fiscale
- Varie attività ricreative e accesso all'autostrada nelle vicinanze
Posti auto nel garage sotterraneo CHF 150.- ...
Ripartizione dei costi
- Affitto netto
- CHF 2’788
- Costi aggiuntivi
- CHF 220
- Totale delle locazioni
- CHF 2’788
Dettagli immobile
- Disponibile dal
- Su accordo
- Anno di costruzione
- 2015
- Superficie abitabile
- 118 m²
- Piano
- 2°



