Appartamento in affitto - Engelhardstrasse 83, 3280 Murten
Perché amerai questa proprietà
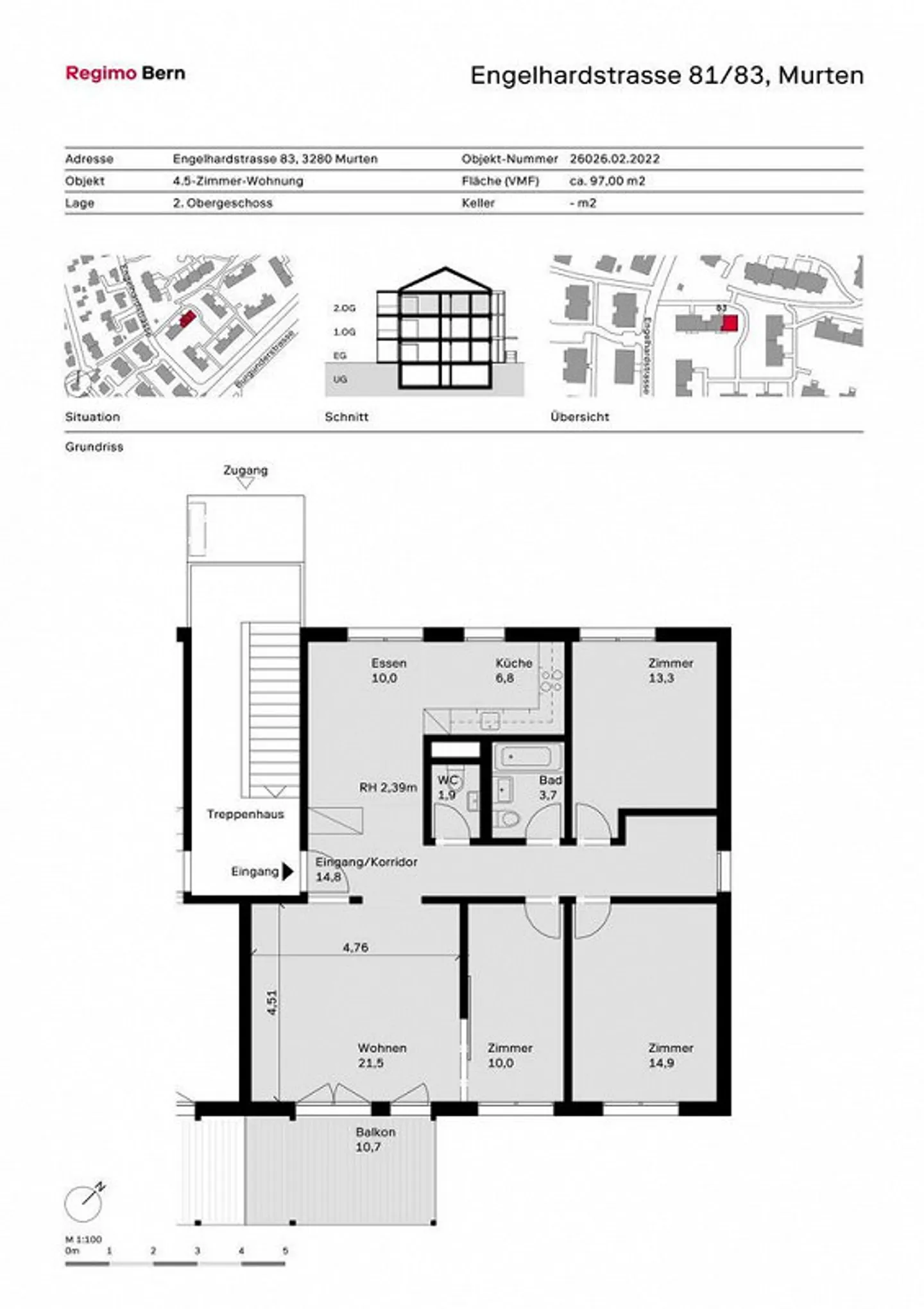
Cucina aperta con zona pranzo
Ampio balcone per rilassarsi
Comodo WC per ospiti disponibile
Organizza una visita
Prenota una visita oggi!
Affittare senza deposito - qui il tuo sogno abitativo potrebbe avverarsi
Posizione favorevole, layout attraente, arredamento moderno, molta luce e aria: questi vantaggi rendono questo appartamento un luogo particolarmente desiderabile in cui vivere. Una piccola famiglia o una coppia con elevate esigenze di arredamento e comfort si sentirà a casa fin dal primo giorno.
Per la tua qualità abitativa:
- cucina aperta con piano cottura in vetroceramica e zona pranzo
- pavimento piastrellato in cucina e nel bagno
- bagno con vasca e WC
- WC per gli ospiti
- guardaroba all'ingress...
Ripartizione dei costi
- Affitto netto
- CHF 2’020
- Costi aggiuntivi
- CHF 310
- Totale delle locazioni
- CHF 2’020
Dettagli immobile
- Disponibile dal
- 01.02.2026
- Stanze
- 4.5
- Superficie abitabile
- 91 m²
- Piano
- 2°



