1 / 7

Appartamento in affitto - Könizstrasse 82, 3008 Bern

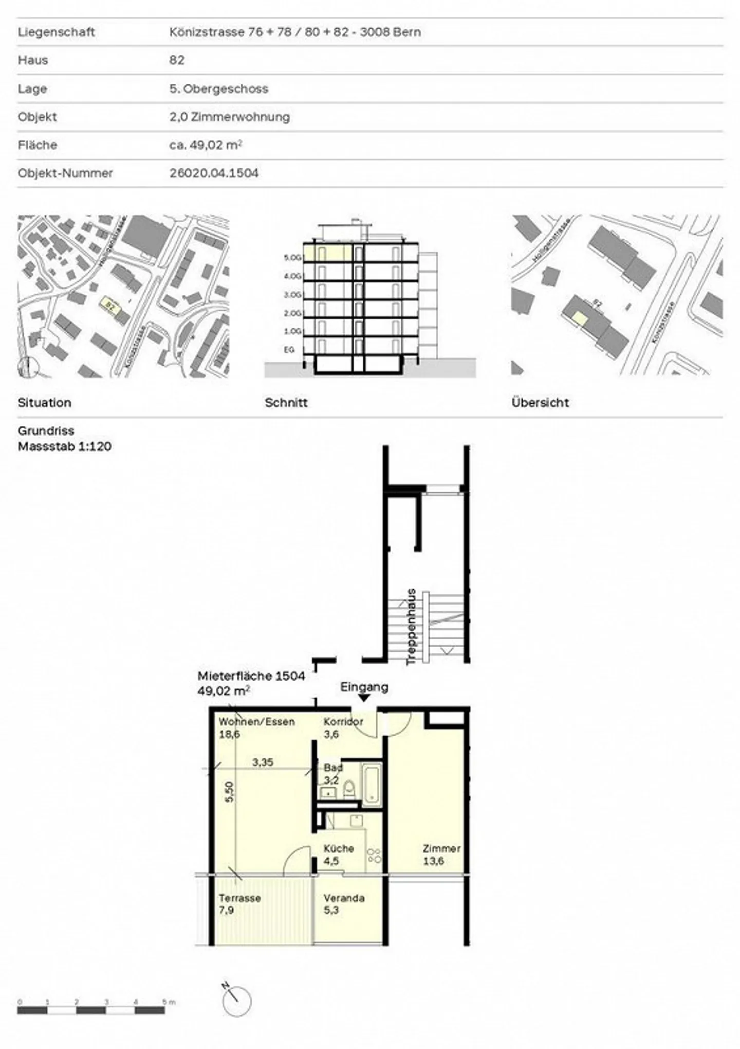
2 rooms • 44 m² • 6° piano
CHF 1’340.-
CHF 365 m² / year

Perché amerai questa proprietà

Nessun deposito richiesto

Accesso centrale ai trasporti

Balcone e veranda accoglienti

Organizza una visita

Prenota una visita con Michèle oggi!

Michèle Scherwey
Regimo Bern AG
Questa descrizione è stata tradotta automaticamente da Tedesco.

Affittare senza deposito - vita urbana nel quartiere centrale della città

Se lavori in città e dai valore a un breve tragitto, questa offerta soddisferà sicuramente le tue esigenze. Il piccolo appartamento, ma arredato con comfort, si trova in una posizione centrale, con fermate di tram e autobus e negozi raggiungibili in pochi minuti a piedi.

Per la tua qualità abitativa:

- Pavimento in parquet nella zona giorno e notte

- Armadi a muro all'ingresso

- Bagno con doccia/WC

- Balcone e veranda

- Cantina

- Ascensore

In aggiunta su richiesta: Posto auto in garage sotterraneo per C...

Dettagli immobile

Disponibile dal
Su accordo
Stanze
2
Anno di costruzione
1969
Superficie abitabile
44
Piano

Caratteristiche

Balcone
Vista libera
Ascensore

Agenzia

Regimo Bern AG
Indirizzo:Bern, Thunstrasse 32, 3005
Ref: 26020.04.1504

Località

Könizstrasse 82, 3008 Bern

Fonti