Incantevole Appartamento al Piano Terra
Perché amerai questa proprietà
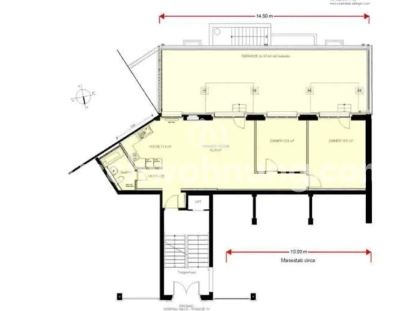
Ampia terrazza per rilassarsi
Finestre affacciate sul cortile
A pochi passi dalla stazione di Enge
Organizza una visita
Prenota una visita con Tauschwohnung oggi!
Si tratta di un'offerta di scambio. (ID fornitore: 362455)
Appartamento di 90m2 al piano terra accanto alla stazione ferroviaria di Enge, a 2 minuti dal lago, con una grande terrazza. Molto tranquillo: le finestre si affacciano sul cortile.
Ci stiamo separando con il mio coinquilino, quindi stiamo cercando qualcosa di più piccolo - a parte questo, l'appartamento è fantastico.
Ripartizione dei costi
- Affitto netto
- CHF 3'700
- Costi aggiuntivi
- CHF 250
- Totale delle locazioni
- CHF 3'700
Dettagli immobile
- Disponibile dal
- Su accordo
- Stanze
- 3.5
- Superficie abitabile
- 90 m²
- Piano
- Terra



