Appartamento in affitto - Rüeckingenstrasse 8, 6023 Rothenburg
Perché amerai questa proprietà
Cucina moderna in granito
Bagno elegante con vasca
Balcone soleggiato a sud
Organizza una visita
Prenota una visita con Chiara oggi!
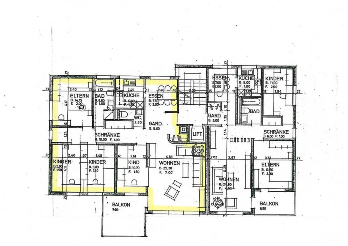
La tua nuova casa a rothenburg - tanto spazio per tutta la famiglia
La tua nuova casa a Rothenburg - tanto spazio per tutta la famiglia
Qui si vive bene
La proprietà in Rüeckringenstrasse 8 si trova un po' lontano dal trambusto, immersa in un popolare quartiere residenziale di Rothenburg. I mezzi pubblici e le possibilità di shopping si trovano nelle vicinanze nel caratteristico paese di Rothenburg e sono facilmente raggiungibili a piedi.
La tua nuova casa?
La moderna cucina con piano in granito, schienale in vetro, forno a incasso, piano cottura in vetroceramica e ...
Ripartizione dei costi
- Affitto netto
- CHF 2’400
- Costi aggiuntivi
- CHF 300
- Totale delle locazioni
- CHF 2’400
Dettagli immobile
- Disponibile dal
- Su accordo
- Stanze
- 5.5
- Superficie abitabile
- 111 m²
- Piano
- 2°



