Appartamento ammobiliato in affitto - Rue Du Cygne 8, 2300 La Chaux-de-Fonds
Perché amerai questa proprietà
Posizione centrale
Posto auto privato
Cucina completamente attrezzata
Organizza una visita
Prenota una visita oggi!
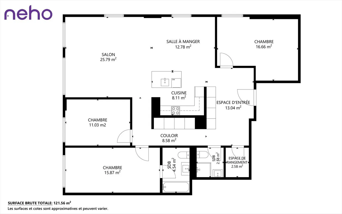
Appartamento arredato 4.5 stanze
Superbo appartamento arredato nel centro città
Bellissimo appartamento completamente attrezzato per il massimo comfort:
* Tre camere da letto dotate di un letto queen size, di cui una con bagno privato (vasca/WC).
* Un secondo bagno (doccia/WC).
* Una cucina completamente attrezzata, aperta sul soggiorno e sulla sala da pranzo. Include una macchina da caffè, una lavastoviglie e un forno.
* Un soggiorno luminoso e arioso con uno spazio di lavoro.
* Una lavatrice e un'asciugatrice private.
* Un ripostigl...
Dettagli immobile
- Disponibile dal
- Su accordo
- Stanze
- 4.5
- Bagni
- 2



