Appartamento in affitto - Rue Des Hautes-Bornes 8, 2523 Lignières
Perché amerai questa proprietà
Ampia terrazza di 80 m²
Cucina aperta moderna
Ambiente tranquillo vicino alla natura
Organizza una visita
Prenota una visita oggi!
Eccezionale! Appartamento di 5,5 stanze con terrazza
Eccezionale! Appartamento di 5,5 stanze con terrazza
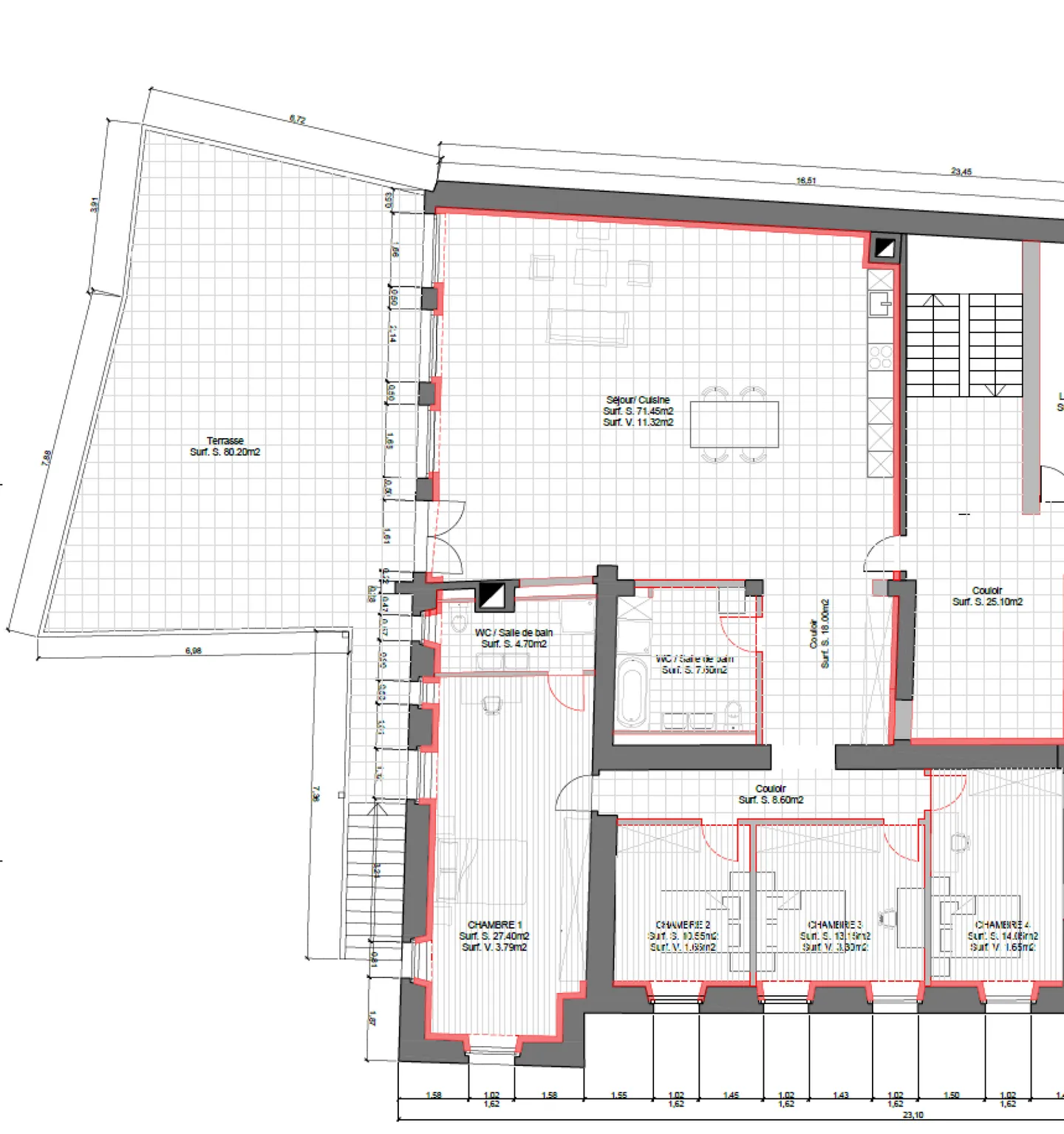
Questo appartamento raro sul mercato offre 175 m² di spazio abitabile, una terrazza di 80 m² e una disposizione ideale per una famiglia. Situato in un contesto tranquillo vicino alla natura, unisce volumi generosi, luminosità e comfort moderni.
Vantaggi principali
Superficie di 175 m² al 1° piano
Terrazza di 80 m², perfetta per godere delle belle giornate
Ingresso
Cucina moderna e completamente attrezzata
Cucina aperta sul soggiorno e sulla s...
Ripartizione dei costi
- Affitto netto
- CHF 2’600
- Costi aggiuntivi
- CHF 250
- Totale delle locazioni
- CHF 2’600
Dettagli immobile
- Disponibile dal
- 01.01.1970
- Stanze
- 5.5
- Superficie abitabile
- 175 m²
- Superficie utilizzabile
- 175 m²
- Piano
- 1°



