1 / 10

Appartamento in affitto - Place Des Bennelats 8, 2900 Porrentruy

4.5 stanze • 2° piano
CHF 1’780.-
-

Perché amerai questa proprietà

Ampio soggiorno

Cucina completamente attrezzata

Vista sul ruscello Allaine

Organizza una visita

Prenota una visita oggi!

Les Régisseurs Loeffel & Chevrey SA
Questa descrizione è stata tradotta automaticamente da Francese.

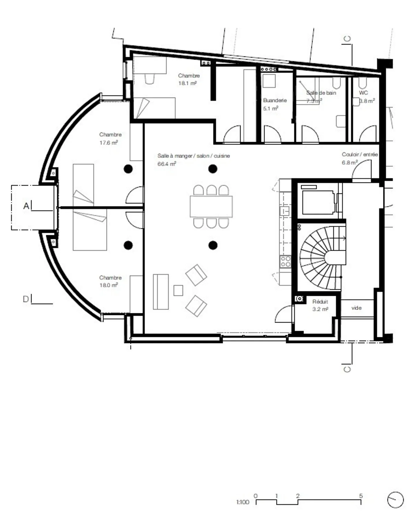
Un soggiorno dalle dimensioni generose

Goditi un alloggio appena creato per un comfort ottimale.

Le aziende regionali hanno lavorato con grande cura per garantire un'alta qualità costruttiva.

Per il tuo benessere, questo appartamento include un ampio soggiorno aperto con una cucina completamente attrezzata e un ripostiglio adiacente.

2 camere da letto si affacciano sul torrente Allaine e la 3a camera da letto dispone di un guardaroba.

Per completare gli allestimenti, un bagno-doccia e un bagno separato faciliteranno la tua organizzaz...

Dettagli immobile

Disponibile dal
01.04.2025
Stanze
4.5
Anno di costruzione
2025
Piano

Agenzia

Les Régisseurs Loeffel & Chevrey SA
Indirizzo:Rue du 23-Juin 28, 2822, Courroux
Ref: L-180225-4p
Online da
03/09/2025
2 mesi fa

Località

Place Des Bennelats 8, 2900 Porrentruy