1 / 14

Appartamento in affitto - Dättenmoosweg 8, 3303 Jegenstorf

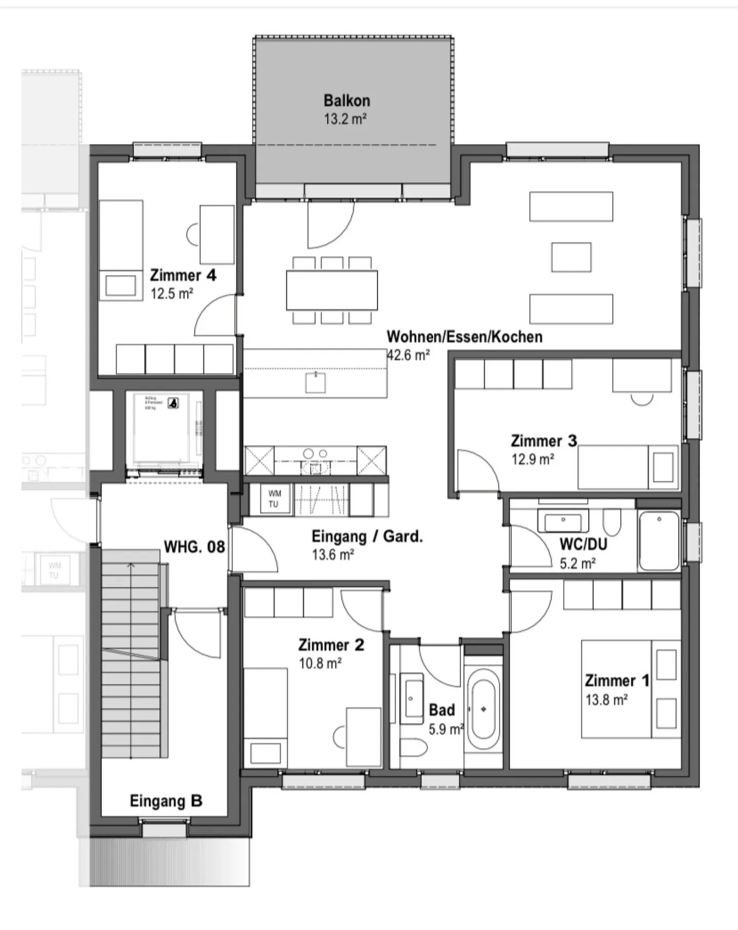
5.5 stanze • 117 m² • 1° piano
CHF 2’490
CHF 255 m² / year

Perché amerai questa proprietà

Pavimento in parquet di alta qualità

Ampio balcone per rilassarsi

Sistema di riscaldamento ecologico

Organizza una visita

Prenota una visita oggi!

burriplus immobilien-treuhand
Questa descrizione è stata tradotta automaticamente da Tedesco.

La tua nuova casa ti aspetta!

Trasferisciti e sentiti a casa!

In una posizione tranquilla alla periferia di Jegenstorf, affittiamo da subito o su appuntamento un moderno appartamento di 5,5 locali in standard di proprietà.

Convinciti da solo:

* Aree abitative con pavimenti in parquet di alta qualità e riscaldamento a pavimento

* Cucina aperta con isola di cottura, illuminazione a spot, vapore e forno montato in alto, piano in granito, frigorifero spazioso con congelatore separato

* Bagno/WC con vasca e pavimento piastrellato

* Doc...

Ripartizione dei costi

Affitto netto
CHF 2’490
Costi aggiuntivi
CHF 350
Totale delle locazioni
CHF 2’490

Dettagli immobile

Disponibile dal
20.08.2025
Stanze
5.5
Anno di costruzione
2015
Superficie abitabile
117
Piano

Caratteristiche

Balcone
Ascensore
Tv via cavo
Lavatrice
Asciugatrice
Adatto ai bambini

Agenzia

burriplus immobilien-treuhand
Indirizzo:Dalmaziquai 37, 3005, Bern
Ref: 144.1.1013
Online da
01/09/2025
2 mesi fa

Località

Dättenmoosweg 8, 3303 Jegenstorf

Fonti