Appartamento in affitto - Rue Gabriel-Lory 7a, 2000 Neuchâtel
Perché amerai questa proprietà
Soggiorno luminoso con vista lago
Cucina spaziosa e attrezzata
Quartiere residenziale tranquillo
Organizza una visita
Prenota una visita oggi!
Scopri Concept B.180 a Neuchâtel - Appartamento di 3.5 locali
Scopri Concept B.180 a Neuchâtel - Appartamento di 3.5 locali
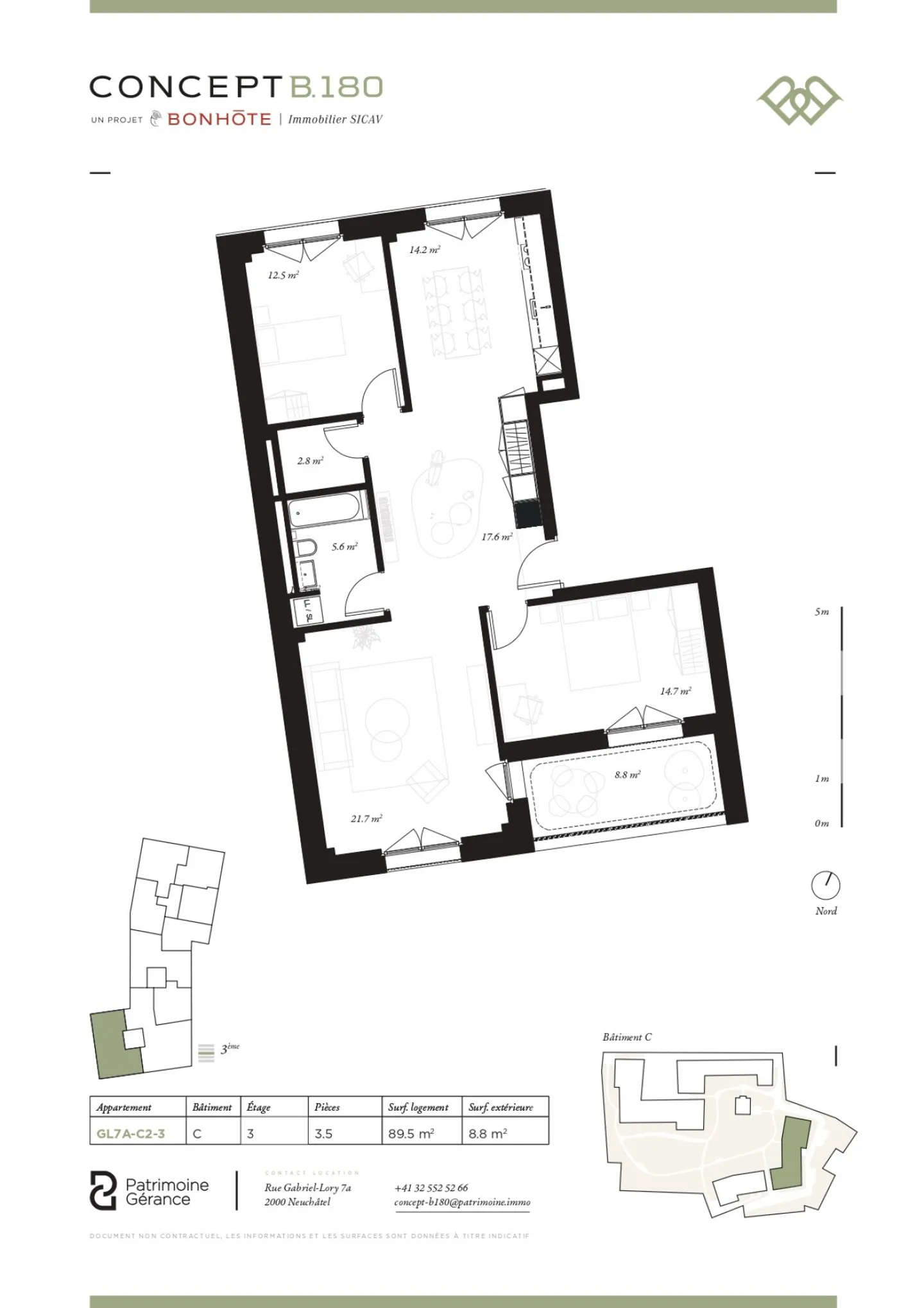
Situato nel cuore del nuovo sviluppo residenziale Concept B.180, questo raffinato appartamento di 3.5 locali offre un ambiente di vita moderno, luminoso e pensato per un comfort ottimale. Situato nel ricercato quartiere di Beauregard a Neuchâtel, beneficia di un'architettura contemporanea, spazi verdi curati e un ambiente tranquillo a pochi passi dai servizi urbani.
Disposizione
Ampio e accogliente ingresso
Cucina completamente attre...
Ripartizione dei costi
- Affitto netto
- CHF 2’120
- Costi aggiuntivi
- CHF 250
- Totale delle locazioni
- CHF 2’120
Dettagli immobile
- Disponibile dal
- Su accordo
- Stanze
- 3.5
- Anno di costruzione
- 2026
- Superficie abitabile
- 89 m²
- Superficie utilizzabile
- 89 m²
- Piano
- 3°



