Appartamento in affitto - Könizstrasse 78, 3008 Bern
Perché amerai questa proprietà
Posizione centrale con servizi
Ampio balcone per relax
Nessun deposito richiesto
Organizza una visita
Prenota una visita con Michèle oggi!
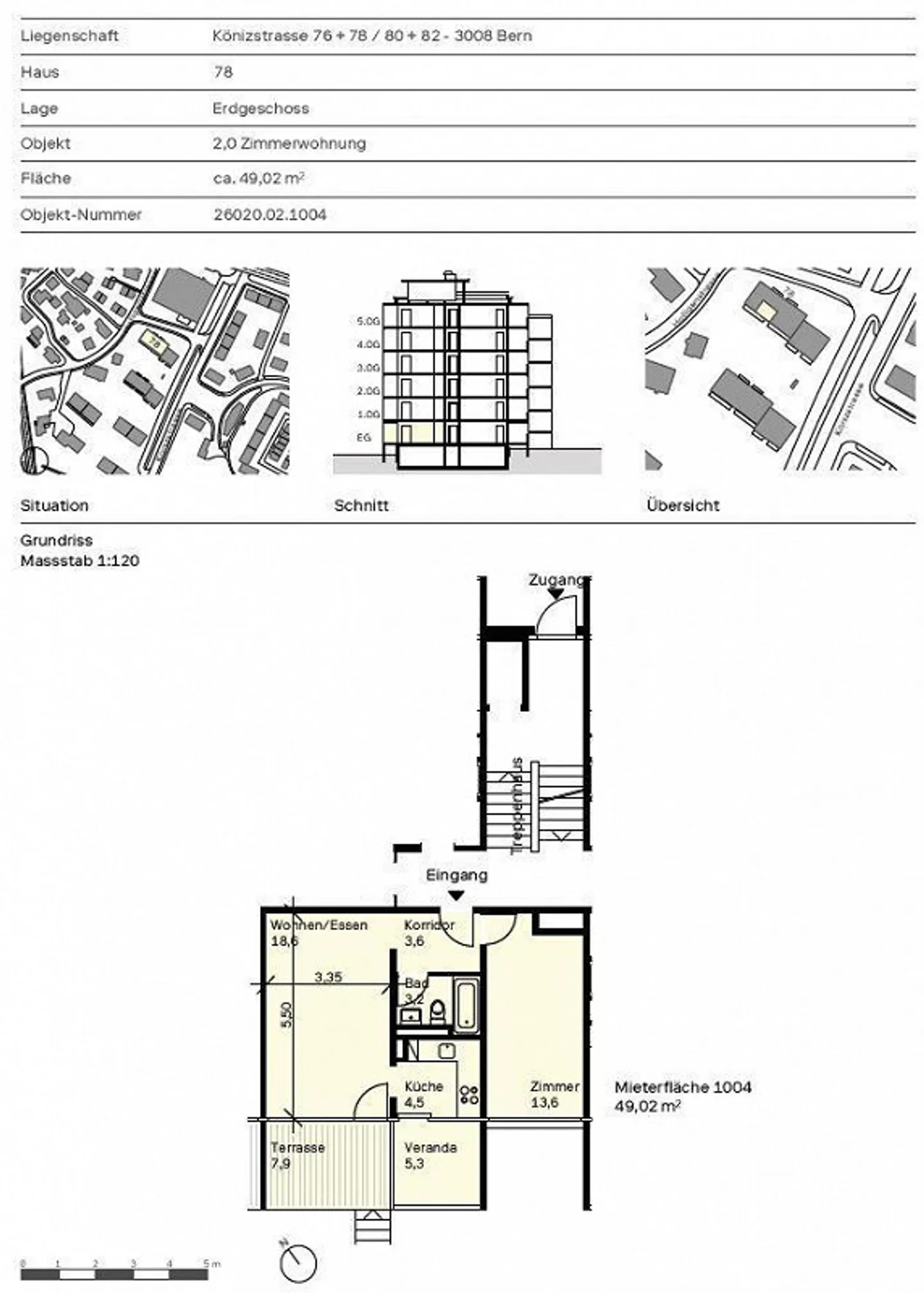
AFFITTARE SENZA DEPOSITO - Atmosfera Urbana in un Quartiere Centrale della Città
Se lavori in città e dai valore a un breve tragitto, questa offerta soddisferà sicuramente le tue esigenze. Il piccolo appartamento, ma arredato con comfort, si trova in una posizione centrale, con fermate di tram e autobus e negozi raggiungibili in pochi minuti a piedi.
Per la tua qualità abitativa:
- Pavimento in parquet nella zona giorno e notte
- Armadi a muro all'ingresso
- Bagno con doccia/WC
- grande balcone
- cantina
- ascensore
In aggiunta su richiesta: posto auto in garage sotterraneo per CHF ...
Ripartizione dei costi
- Affitto netto
- CHF 1’270
- Costi aggiuntivi
- CHF 130
- Totale delle locazioni
- CHF 1’270
Dettagli immobile
- Disponibile dal
- Su accordo
- Stanze
- 2
- Anno di costruzione
- 1969
- Superficie abitabile
- 44 m²
- Piano
- 1°


