Appartamento in affitto - Baselstrasse 78, 4153 Reinach BL
Perché amerai questa proprietà
Ampio soggiorno
Cucina moderna attrezzata
Ambiente adatto alle famiglie
Organizza una visita
Prenota una visita con Ridoma oggi!
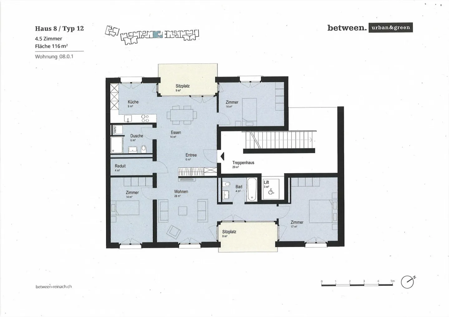
Appartamento moderno di 4,5 locali con standard minergie a reinach
Scopri questo appartamento di alta qualità di 4,5 locali in un nuovissimo edificio certificato Minergie del 2024 in Baselstrasse 78 a Reinach. Con 116 m² di superficie abitabile, questo appartamento al piano terra offre un comfort abitativo moderno con riscaldamento a pavimento, 2 patii, tra l'altro.
_L'appartamento si distingue per:_
* Ampio soggiorno: Soggiorno luminoso con accesso diretto al patio privato
* Cucina moderna: Cucina completamente attrezzata con armadi bianchi, piano di lavoro in gr...
Ripartizione dei costi
- Affitto netto
- CHF 2’950
- Costi aggiuntivi
- CHF 440
- Totale delle locazioni
- CHF 2’950
Dettagli immobile
- Disponibile dal
- 16.12.2025
- Stanze
- 4.5
- Anno di costruzione
- 2024
- Superficie abitabile
- 116 m²
- Piano
- Terra



