Appartamento in affitto - Langgasse 74, 9008 St. Gallen
Perché amerai questa proprietà
Posizione centrale e trasporti
Camere luminose con finestre
Cucina e bagni di alta qualità
Organizza una visita
Prenota una visita con Nico oggi!
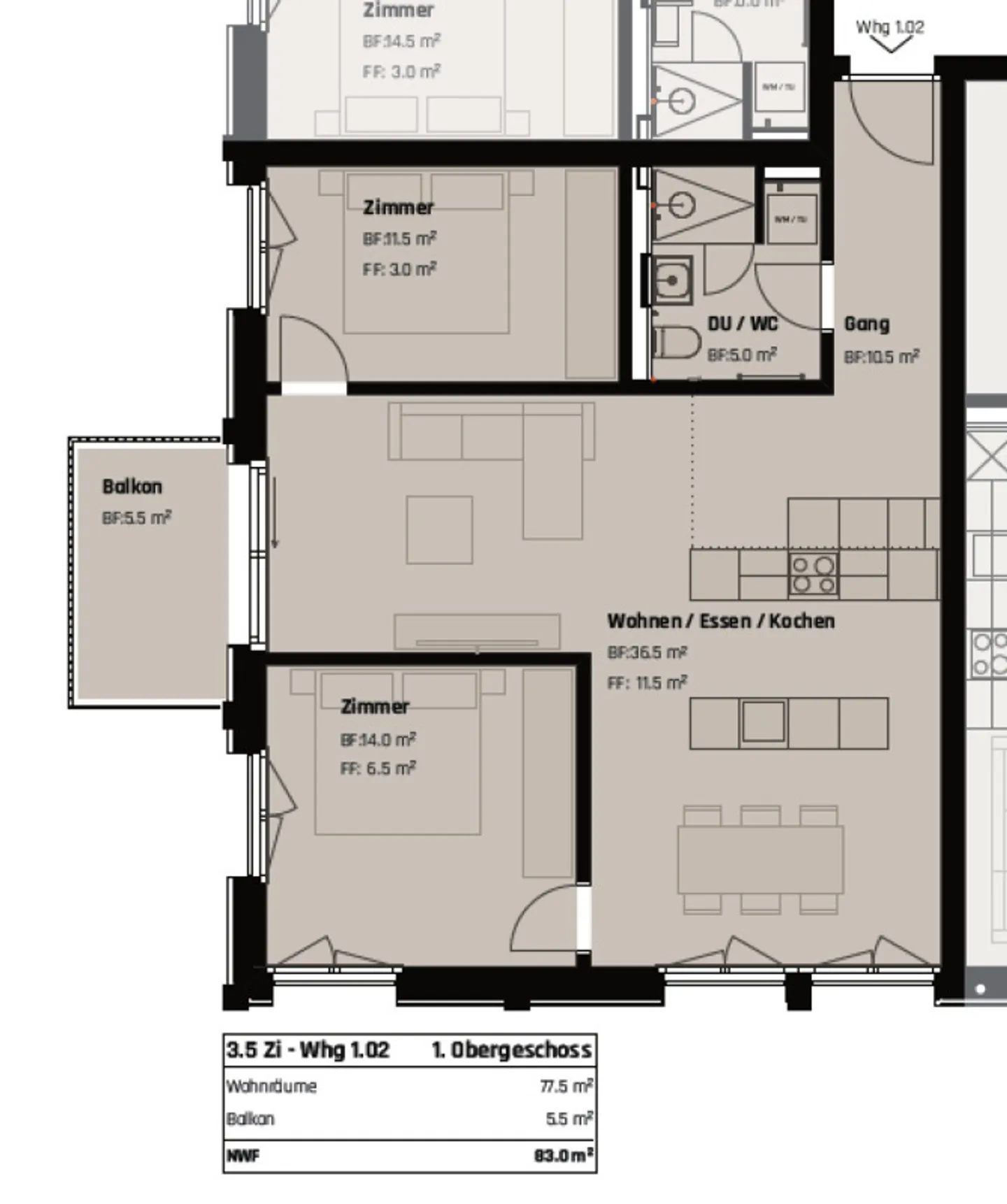
Ultima unita': appartamento di alta qualità con 3,5 stanze nel nuovo progetto verde a centro
VERDE IN CENTRO - Vivere modernamente nel cuore di San Gallo
AFORIA Immobiliare presenta:
Tra l'Ospedale Cantonale e l'Università di San Gallo, VERDE IN CENTRO sta emergendo come un punto di riferimento architettonico della qualità della vita urbana.
I punti salienti a colpo d'occhio:
* Posizione centrale con collegamenti ottimali ai mezzi pubblici (autobus davanti alla porta, stazione ferroviaria di St. Fiden a 550 m)
* Stanze luminose e accoglienti con finestre a tutta altezza e un concetto di illu...
Ripartizione dei costi
- Affitto netto
- CHF 2’370
- Costi aggiuntivi
- CHF 130
- Totale delle locazioni
- CHF 2’370
Dettagli immobile
- Disponibile dal
- 01.09.2025
- Stanze
- 3.5
- Anno di costruzione
- 2025
- Superficie abitabile
- 78 m²
- Superficie utilizzabile
- 78 m²
- Piano
- 1°
- Piani dell'edificio
- 6




