Appartamento in affitto - Amriswilerstrasse 72, 8570 Weinfelden
Perché amerai questa proprietà
Vita con animali ammessa
Facile accesso ai trasporti
Opzioni di shopping vicine
Organizza una visita
Prenota una visita con Privera oggi!
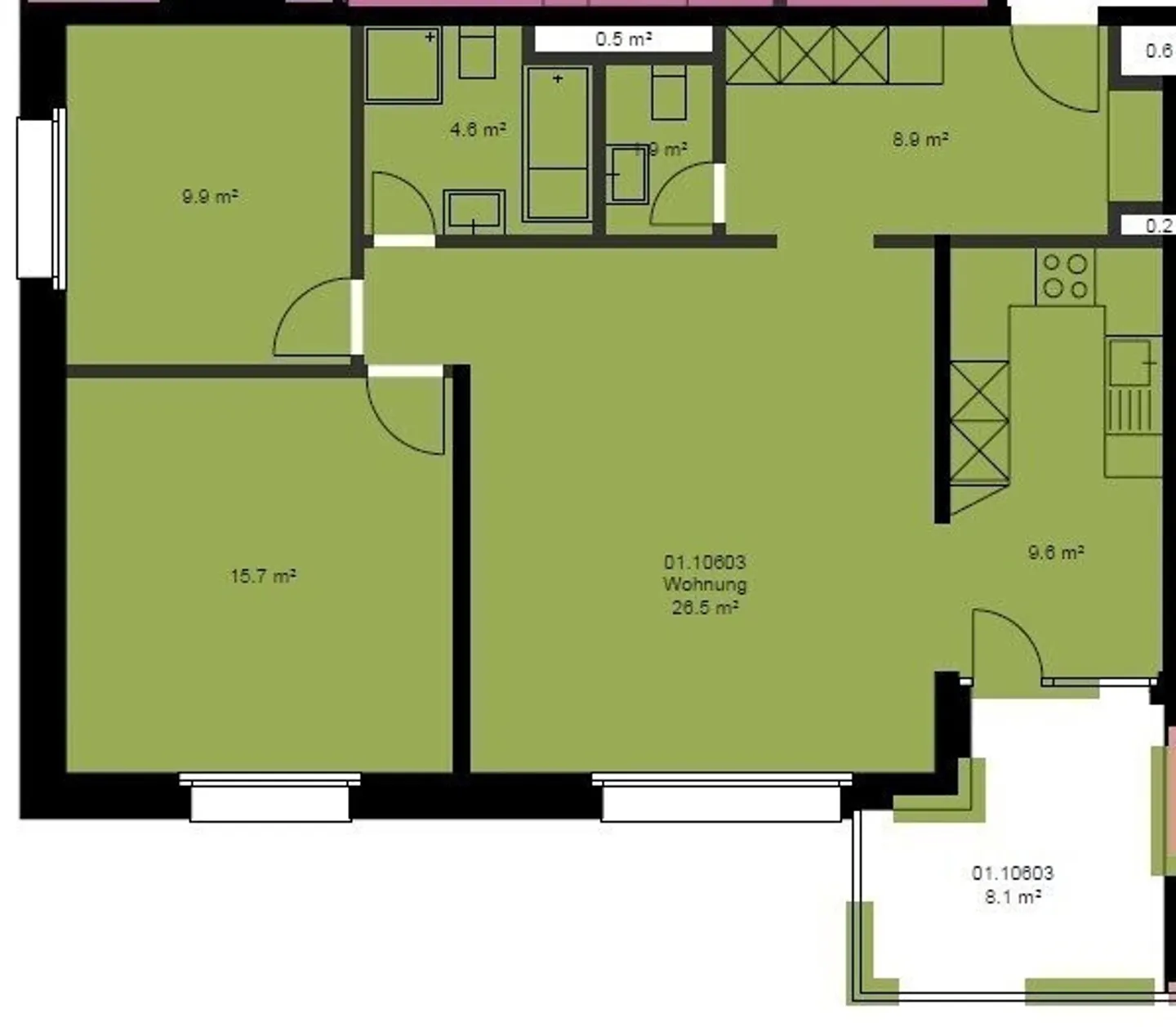
A partire dal 01.04.2026 o su accordo, affittiamo questo appartamento di 3,5 locali a Weinfelden.
L'appartamento offre le seguenti comodità:
- Soggiorno e camere da letto con pavimento in parquet
- Cucina e bagno con pavimento in piastrelle scure di facile manutenzione
- Cucina con piano cottura in vetroceramica, forno e molto spazio di stoccaggio per i tuoi utensili da cucina
- Bagno con WC, lavabo, armadietto a specchio e vasca da bagno
- Balcone per rilassarsi
- Proprio vano cantina
- Lavanderia e s...
Ripartizione dei costi
- Affitto netto
- CHF 1’370
- Costi aggiuntivi
- CHF 180
- Totale delle locazioni
- CHF 1’370
Dettagli immobile
- Disponibile dal
- Su accordo
- Stanze
- 3.5
- Superficie abitabile
- 80 m²
- Piano
- 6°



